МИНИСТЕРСТВО НАУКИ И ВЫСШЕГО ОБРАЗОВАНИЯ
РОССИЙСКОЙ ФЕДЕРАЦИИ
Национальный исследовательский университет «МЭИ»
Кафедра «Электроснабжение промышленных предприятий
и электротехнологии»

ISBN 978-5-7046-2864-4
Национальный исследовательский университет «МЭИ», 2023
УДК621.31
ББК 31.27
О 75
Утверждено учебным управлением НИУ «МЭИ»
в качестве учебного издания
Подготовлено на кафедре электроснабжения промышленных предпрятий и электротехнологии
Рецензенты: профессор, доктор техн. наук А.Б.Кувалдин;
доцент, канд. техн. наук А.В.Кондратьев, ген. Директор ООО «Коэнергия»
Авторы: М.А. Рашевская, С.А. Янченко, М.Е. Вихров, М.С. Егоров, Д.В. Михеев
О 75 Основы электроснабжения. [Электронный ресурс]: учеб. пособие для курсового проектирования/ М.А. Рашевская, С.А. Янченко, М.Е. Вихров и др. – Электрон. дан. – М.: Издательство МЭИ, 2023. – 1 электрон. опт. диск DVD-R.
Рассмотрены вопросы построения систем электроснабжения промышленных предприятий, такие как расчет нагрузок, виды и характеристики оборудования и принципы выбора оборудования, выбор схем ГПП и цеховых ТП, состав оборудования подстанций, построение схем распределения энер-гии по территории предприятия, расчет токов короткого замыкания на уровне напряжения свыше 1 кВ. Также в приложениях приведен необходимый справочный материал: марки, сечения и длительно допустимые токи проводов и кабелей, расчетные коэффициенты электрических нагрузок.
Предназначено для студентов, обучающихся по направлению «Электроэнергетика и электротехника».
Минимальные системные требования :
Тип ЭВМ: ПК на базе Pentium IV и выше.
ОС: Windows XP и выше.
Веб-браузер: Google Chrome, Internet Explorer.
ISBN 978-5-7046-2864-4
Национальный исследовательский университет «МЭИ», 2023
1. Определение расчетных нагрузок
1.1. Расчёт низковольтной нагрузки.
1.2. Расчёт высоковольтной нагрузки
1.3. Расчёт осветительной нагрузки.
1.4. Расчёт электрической нагрузки предприятия
2. Построение картограммы и определение центра электрических нагрузок
3. Определение числа и мощности трансформаторов цеховых ТП и ГПП
3.1. Компенсация реактивной мощности на напряжении 10 кВ
3.2. Выбор местоположения и мощности трансформаторов ГПП
4. Выбор сети внешнего электроснабжения
4.1. Выбор номинального напряжения
4.2. Выбор сечения воздушных линий высокого напряжения
5. Выбор сети внутреннего электроснабжения
5.1. Выбор схем межцеховой сети и способов прокладки
5.2. Размещение цеховых ТП и РП
5.3. Выбор марки и сечений кабельных линий электрических сетей напряжением 10 кВ
5.4 Выбор сечений кабельных линий электрических сетей напряжением 0,4 кВ
6. Расчет токов короткого замыкания в установках выше 1000 В
6.1 Расчет теплового импульса тока КЗ
6.2. Проверка выбранных сечений жил кабелей 6—10 кВ по термической стойкости к действию токов КЗ
8. Технико-экономический расчет
8.1. Оценка капитальных затрат при проектировании системы электроснабжения
8.2. Оценка затрат при эксплуатации системы электроснабжения
Задание № 1. Электроснабжение никелевого рудника
Задание №2. Электроснабжение станкостроительного завода
Задание № 3. Электроснабжение ситценабивной фабрики
Задание № 4. Электроснабжение комбината цветной металлургии
Задание №5. Электроснабжение часового завода
Задание № 6. Электроснабжение авторемонтного завода
Задание № 7. Электроснабжение сахарного завода
Задание №8. Электроснабжение меланжевого комбината
Задание № 9. Электроснабжение завода маслоочистительных машин
Задание № 10. Электроснабжение кабельного завода
Задание №11 Электроснабжение машиностроительного завода
Задание № 12. Электроснабжение судоремонтного завода
Задание № 13. Электроснабжение завода по производству запасных деталей к тракторам
Задание № 14. Электроснабжение текстильной фабрики
Задание № 15. Электроснабжение мясокомбината
Задание № 16. Электроснабжение химического завода по производству красителей
Задание №17. Электроснабжение чулочно-трикотажной фабрики
Задание №18. Электроснабжение метизно-металлургического завода
Задание №19. Электроснабжение авиационного завода
Задание № 20. Электроснабжение агломерационной фабрики металургического комбината
Задание №21. Электроснабжение машиностроительного завода
Задание №22. Электроснабжение обогатительной фабрики металлургического комбината
Задание №23. Электроснабжение бумажной фабрики
Задание №24. Электроснабжение завода электросталей
Задание №25. Электроснабжение завода ферросплавов
Задание №26. Электроснабжение агломерационной фабрики
Задание №27. Электроснабжение дизелестроительного завода
Задание № 29. Электроснабжение химического завода по производству прямых и обратных красителей
Задание №30. Электроснабжение завода торгового машиностроения
Задание №31. Электроснабжение механического завода местной промышленности
Задание №32. Электроснабжение завода торгового машиностроения
Задание №33. Электроснабжение деревообрабатывающего завода
Задание № 34. Электроснабжение судоремонтного завода
Задание № 35. Электроснабжение агломерационной фабрики металлургического комбината
Задание № 36. Электроснабжение машиностроительного завода
Задание № 37. Электроснабжение завода электрических измерительных приборов
Задание № 38. Электроснабжение химического завода
Задание № 39. Электроснабжение завода по производству огнеупоров металлургического комбината
Задание № 40. Электроснабжение тракторостроительного завода
Задание № 41. Электроснабжение завода «Шарикоподшипник»
Задание № 42. Электроснабжение завода химического и текстильного машиностроения
Задание № 43. Электроснабжение завода черной металлургии
Приложение 1. Расчетные коэффициенты электрических нагрузок
Приложение 2. Допустимые загрузки СД по реактивной мощности
Приложение 3. Экономическая плотность тока
Приложение 4. Минимальные сечения по ветровой нагрузке и гололеду
Приложение 5. Выбор проводников 0,4 кВ
Приложение 6. Термический коэффициент для кабелей
Приложение 8. Длительно допустимые токи по ПУЭ
Приложение 9. Расчет сопротивлений цепи КЗ в именованных и относительных единицах
Система электроснабжения предприятий, состоящая из сетей до 1 кВ и выше, трансформаторных и преобразовательных подстанций, служит для обеспечения потребителей электрической энергией в необходимом количестве и соответствующего качества. Система электроснабжения предприятия является подсистемой технологической системы производства предприятия.
Система электроснабжения должна удовлетворять требованиям экономичности и надёжности, безопасности и удобства эксплуатации, возможности индустриального выполнения строительно-монтажных работ. Не допустимы перерывы в электроснабжении, которые могут нанести ущерб, привести к авариям, связанным с человеческими жертвами и выходом из строя дорогостоящего оборудования.
Система электроснабжения должна быть гибкой, допускать рост мощности предприятий при изменении производственных условий.
Основной задачей, решаемой при проектировании системы электроснабжения, считается оптимизация параметров схемы при обеспечении бесперебойности электроснабжения за счёт правильного выбора напряжений, определения электрических нагрузок, рационального выбора числа и мощности трансформаторов, конструкций промышленных сетей, средств компенсации реактивной мощности и регулирования напряжения.
Учебное пособие предназначено для использования студентами, изучающими курс «Основы электроснабжения» при выполнении ими курсового проекта по дисциплине. В пособии изложены теоретические основы проектирования систем электроснабжения промышленных предприятий, порядок выполнения проекта, а также приведены справочные материалы.
Одной из первых и основополагающих частей проекта электроснабжения объекта является расчет ожидаемых электрических нагрузок на всех ступенях трансформации. Именно нагрузки определяют необходимые технические характеристики элементов электрических сетей – сечения жил и марки проводников, мощности и типы трансформаторов, электрических аппаратов и другого электротехнического оборудования. Завышение ожидаемых нагрузок при проектировании по сравнению с реально возникающими приводит к перерасходу материалов проводников и средств, вложенных в избыточную мощность электрооборудования, но также и создает возможности для роста производства. Занижение – к излишним потерям мощности, перегреву проводников, повышенному износу и сокращению срока службы электрооборудования, невозможности развития производства . Правильное определение электрических нагрузок обеспечивает технически и экономически обоснованный выбор основного и вспомогательного оборудования, средств компенсации реактивной мощности, устройств регулирования напряжения, а также релейной защиты и автоматики электрических сетей. Расчетная нагрузка предприятия складывается из низковольтной, высоковольтной и осветительной нагрузки. На разных уровнях системы электроснабжения применяются разные методы расчета нагрузок. Методы расчета силовой и осветительной нагрузки различаются. На предпроектной стадии и 5–6 уровне системы электроснабжения расчет силовой нагрузки производится преимущественно методом коэффициента спроса, а осветительной – методом удельной плотности нагрузки.
Для определения расчётной мощности низковольтной нагрузки используем метод коэффициента спроса. В соответствии с методом коэффициента спроса допускается рассчитывать нагрузку предприятия в целом по средним величинам коэффициента спроса
по формуле (1.1). Реактивную расчётную мощность определим по формуле (1.2).
(1.1)
(1.2)
где
– суммарная установленная мощность всех приемников низкого напряжения, принимаемая по исходным данным для каждого цеха;
– средний коэффициент спроса, принимаемый по справочным данным;
– соответствует средневзвешенному значению коэффициента мощности
данного цеха.
Величины коэффициентов спроса для различных типов электроприемников можно посмотреть в Приложении 1
Высоковольтная нагрузка предприятия вычисляется по методу коэффициента спроса.
Активная и реактивная расчетная высоковольтная нагрузка силовых приемников цеха определяется из соотношений аналогично пункту 2.1 по формулам (2.1), (2.2).
Для синхронных двигателей находится не реактивная нагрузка, а максимальная реактивная мощность, которую СД может генерировать. Значения реактивной мощности, получаемой от СД, зависят от его загрузки активной мощностью и относительного напряжения на зажимах двигателя:
(1.3)
где
– суммарная установленная мощность группы СД;
,
– номинальные данные СД (коэффициент реактивной мощности и КПД);
– коэффициент наибольшей допустимой нагрузки СД по реактивной мощности
Величины коэффициентов для разных типов синхронных двигателей можно посмотреть в приложении 2
В качестве электрических источников света на промышленном предприятии используются люминесцентные лампы и светодиодные лампы.
Активная расчётная нагрузка осветительных приёмников цеха определяется по удельной нагрузке и коэффициенту спроса осветительной нагрузки:
(1.4)
где
- удельная нагрузка осветительных приёмников (ламп);
- площадь пола цеха, определяемая по генплану.
Лампы накаливания на предприятиях в основном используются в качестве аварийного освещения, которое служит для временного продолжения работы или для эвакуации людей из помещения при внезапном отключении рабочего освещения. Для ламп накаливания
. Разрядные лампы на предприятии используются как основной источник света (составляют примерно 75% от общего освещения), обеспечивающий нормальную работу производства. Для них реактивная мощность вычисляется по формуле:
(1.5)
где
.
Расчетные полную активную и реактивную мощности завода
,
,
, находят по расчетным активным и реактивным нагрузкам цехов (как силовым – до 1 кВ и выше –
,
,
,
, так и осветительным –
,
) с учетом потерь мощности в трансформаторах 3УР цеховых подстанций
,
и коэффициента разновременности максимумов силовой нагрузки
.
Суммарные потери активной и реактивной мощности в трансформаторах 3УР приближённо принимаются равными, соответственно, 2 и 10 % полной трансформируемой мощности
:
; ![]()
где
(1.6)
Суммарные потери активной и реактивной мощности в цеховых сетях приближённо принимаются равными, соответственно, 1,5 и 2 % от полной трансформируемой мощности
:
;
. (1.7)
Полная, активная и реактивная мощность завода определяется по следующим формулам:
(1.8)
где
– коэффициент одновременности максимумов силовой нагрузки для шин ГПП, равный
.
Значение реактивной мощности
, поступающей от питающей энергосистемы к шинам низшего напряжения ГПП, определяют исходя из условий задания на проект и вычисленной
:
(1.9)
Результаты расчета свести в таблицу (табл.1.1).
Таблица 1.1 Расчетная нагрузка
№ | Наименование цеха | Уст. мощность, кВт | Кс | cosφ | tg φ | Рр, кВт | Qн, квар | Qр, квар | Sр, кВА |
1 |
|
|
|
|
|
|
|
|
|
При расположении цеховых ТП и ГПП по территории завода с целью уменьшения потерь в распределительной сети низшего напряжения необходимо по возможности приближать подводимое высшее напряжение к центру электрических нагрузок.
Для этого строится картограмма электрических нагрузок (см. лист 1 графической части проекта). Построение картограммы выполняется на основании результатов определения расчетных нагрузок корпусов, приведенных в табл. 2.
Картограмма строится из условия, что площади кругов
в выбранном масштабе m являются расчетными полными нагрузками корпусов
.
, (2.1)
. (2.2)
Таким образом, радиусы окружностей для картограммы определяются по выражению:
. (2.3)
Если принять масштаб
, то выражение примет вид:
. (2.4)
Силовые нагрузки до и выше 1000 (В) изображаются отдельными окружностями. Центр электрических нагрузок принимаем совпадающим с геометрическим центром корпуса. Осветительная нагрузка обозначается сектором круга нагрузки до 1000 (В). Угол сектора определяется из соотношений полных расчетных нагрузок Рpасч.НН. и расчетных осветительных нагрузок Рpасч.Л корпусов.
. (2.5)
Для более точного определения места расположения ГПП необходимо определить центр электрических нагрузок аналитическим методом сложения параллельных нагрузок, основанного на теории проекций. На генплане предприятия произвольно наносятся оси координат, и координаты центра электрических нагрузок определяются по выражениям:
;
, (2.6)
где
,
– координаты центра электрических нагрузок завода;
,
– координаты центра нагрузок і-го цеха;
– расчетная суммарная нагрузка.
Результаты расчета сводятся а таблицу (Табл.2.1)
Таблица 2.1 Определение места ГПП
№ | Рр, кВт | Рр.л., кВт | Рр.Ʃ, кВт | r, мм | a, ⁰ | Xi, м | Yi, м | Xi·PƩ | Yi·PƩ |
|
|
|
|
|
|
|
|
|
|
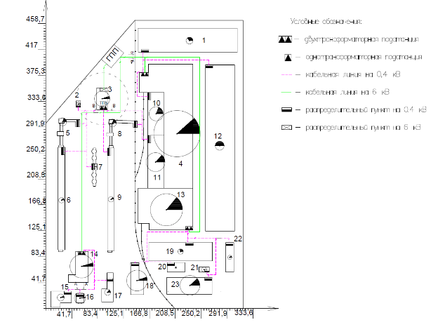
Пример картограммы нагрузок представлен на рисунке 2.1.

Рис. 2.1. Пример картограммы нагрузок нанесенной на генплан предприятия
Выбор типа и схемы питания подстанций обусловлен величиной и характером электрических нагрузок, размещением нагрузок на генеральном плане предприятия, а также производственными, архитектурно - строительными и эксплуатационными требованиями. Также, должны учитываться: конфигурация производственных помещений, расположение технологического и другого оборудования, условия окружающей среды и температурные, требования пожарной и электрической безопасности, типы применяемого оборудования.
Главные понизительные подстанции 5УР, распределительные подстанции 4УР, трансформаторы трансформаторных подстанций 3УР должны размещаться ближе к центру электрических нагрузок. РП и ТП могут сооружаться внутри цеха или быть пристроены к нему. ТП, питающие отдельные цеха (корпуса) или части их, должны размещаться вне цеха только при невозможности размещения внутри или при расположении части нагрузок вне цеха. Следует отдавать предпочтение типовым комплектным трансформаторным подстанциям.
При дефиците реактивной мощности напряжение в сети понижается. В дефицитных по активной мощности энергосистемах уровень напряжения, как правило, ниже номинального. Недостающая для выполнения баланса активная мощность передается в такие системы из соседних энергосистем, в которых имеется избыток генерируемой мощности. Обычно энергосистемы дефицитные по активной мощности, дефицитны и по реактивной мощности. Однако недостающую реактивную мощность эффективнее не передавать из соседних энергосистем, а генерировать в компенсирующих устройствах, установленных в данной энергосистеме.
Мощность компенсирующих устройств в сети высокого напряжения рассчитывается по условию баланса реактивной мощности на шинах 5УР.
На большинстве промышленных предприятий компенсация реактивных нагрузок может осуществляться за счет перевозбуждения имеющихся синхронных электродвигателей (СД) напряжением 6–10 кВ (см. главу 1.2) или путем размещения в сети конденсаторных установок высокого (ВКБ) и низкого (НКБ) напряжения.
В варианте с ВКБ необходимо учитывать затраты, обусловленные дополнительными потерями электроэнергии, вызванными передачей РМ QВ через трансформатор и линию. Функция данных затрат имеет квадратичный характер и зависит от активных сопротивлений трансформатора и линии. Дополнительные затраты увеличивают стоимость варианта с ВКБ (пунктир на рис. 3.1) и соответственно значение QВН.

Рис. 3.1. Размещение конденсаторных батарей
При решении вопроса компенсации РМ в цехах выбирают цеха с большой мощностью нагрузки и высоким уровнем РМ. Результаты выбора заносят в таблицу 3.1.
Таблица 3.1 Компенсация реактивной мощности в цехах
П№ | Наименование цеха | Qрасч, кВАр | Qку.расч, кВАр | Установленные КУ | Qку, квар | Qпк, квар | Sпк |
1 | Деревообрабатывающий цех | 154,5 | 87,7 |
|
| 154,5 | 227,51 |
2 | Литейный цех (0.4 кВ) | 2046,4 | 1057,92 | 2хУКРМ-0,4-500-25 У3 | 1000 | 1046,4 | 2683,61 |
Выбор местоположения, типа, мощности и других параметров ГПП обуславливается величиной и характером электрических нагрузок, и размещением их на плане. ГПП следует располагать ближе к центру нагрузок. Намеченное место расположения уточняется по условиям розы ветров, планировки предприятия, габаритов и типа подстанции, возможности подвода высоковольтных линий от энергосистемы.
ГПП выполняется двухтрансформаторной. Мощность трансформаторов определяется активной нагрузкой предприятия и реактивной мощностью, передаваемой от системы в период максимума нагрузок. Мощность трансформаторов выбирается такой, чтобы при выходе из работы одного из них второй воспринял основную нагрузку подстанции с учётом допускаемой перегрузки в послеаварийном режиме и возможного временного отключения потребителей III категории.
Учитывая наличие на заводе потребителей I и II категорий надежности электроснабжения, то на ГПП устанавливаем 2 трансформатора.
Номинальную мощность каждого из них определяем по условию:
, (3.1)
где
– расчетная полная мощность завода со стороны высшего напряжения трансформаторов ГПП. После выбора реального значения мощности трансформатора проверяется получившийся коэффициент загрузки.
При мощности выше 25000КВА обмотки низкого напряжения трансформаторов расщепляются, поэтому стоит рассмотреть схему ГПП с 4 секциями шин. Схемы ГПП
Данные трансформаторов ГПП заносятся в таблицу (табл. 3.2).
Таблица 3.2. Каталожные данные трансформатора
Тип | Каталожные данные | Расчетные данные | |||||
Uк,% | ΔPк, кВт | ΔPx, кВт | Ix ,% | Rт , Ом | Хт , Ом |
квар | |
|
|
|
|
|
|
|
|
Выбор числа и мощности цеховых ТП производим по требуемой степени надежности электроснабжения и рационального распределения между ТП потребителей электроэнергии на напряжение до 1 кВ.
Цеховые трансформаторные подстанции, как правило, не должны иметь распределительного устройства на стороне высшего напряжения. Следует широко применять непосредственное (глухое) присоединение питающей кабельной линии к трансформатору при радиальных схемах питания и присоединение через разъединитель или выключатель нагрузки при магистральных схемах питания.
При наличии потребителей I и II категории устанавливаем двухтрансформаторную подстанцию с устройством АВР на шинах низшего напряжения. В остальных случаях устанавливаем трансформаторные подстанции в зависимости от мощности цехов. При этом загрузка трансформаторов, оставшихся в работе в послеаварийном режиме не должна превышать 40% с учетом возможного отключения неответственных потребителей.
При размещении ТП на генплане предприятия необходимо избегать обратных потоков мощностей.
Схема установки ТП и РУ с разводкой питающих кабелей от ГПП приводится на генплане.
Данные о числе и мощности трансформаторов заносятся в таблицу 3.3. При питании цеха на низком напряжении от соседних цехов сведения об этом также отображаются в таблице 3.3.
Таблица 3.3. Выбор числа и мощности цеховых трансформаторов.
№ | Наименование цеха | Рр.Ʃ, кВт | Qр.Ʃ, кВт | Sр.Ʃ, кВт |
| Sном. т, кВА | Кз | Кат. |
1 | Насосная | 257,50 | 186,84 | 319,13 | 560,36 | 4xТМГ-250/10 | 0,56 | I, II |
2 | Столовая | 36,91 | 19,56 | 42,12 | 268,94 | 2xТМГ-250/10 | 0,54 | II, III |
3 | Заводоуправление | 51,72 | 22,75 | 56,68 |
| от ТП 2 |
| II, III |
Недоучет этих требований может привести к недостаточному резервированию, излишним затратам. СНиП 3.01.01-85 и СНиП 12-01-2004 рекомендуют проект технологической части разрабатывать одновременной со строительной частью.
На стройгенплане учитывают возможность размещения трансформаторов и электрических аппаратов и прокладку кабельных линий, а также уже существующие КЛ или ВЛ, здания или сооружения, механизированные установки и инженерные коммуникации, которые необходимы для проведения работ. Разработка данного плана основывается на рабочей документации.
Генплан детально описывает разрабатываемый объект: коридоры для кабельных и воздушных линий, эстакад, способы транспортировки тяжелого оборудования, которое невозможно доставить на места монтажа без спецтранспорта.
Номинальное напряжение электрической сети существенно влияет на её технико-экономические показатели и технические характеристики. Экономически целесообразное напряжение зависит от многих факторов. Сейчас высшее напряжение диктуется энергосистемой, а распределительное (среднее) и другие – изготавливаемым оборудованием. Как поверочный расчёт может быть выполнен расчёт экономически целесообразного напряжения для передачи электроэнергии по выражению:
, (4.1)
где L – длина линии, км;
Sц – передаваемая мощность одной цепи, МВА.
По шкале номинальных напряжений принимаем ближайшее значение напряжения. Следовательно, с учётом расширения предприятия и роста производства, выбираем ближайшее большее напряжение, которое и будет наиболее экономически целесообразным.
При питании от двуцепной воздушной линии расчетная токовая нагрузка линии определяется по выражению
, (4.2)
где
=1.05 – коэффициент, учитывающий изменение нагрузки по годам эксплуатации линии;
- коэффициент, учитывающий число часов использования максимальной нагрузки линии Тм, при Тм=5500ч
=1; ток линии на пятый год её эксплуатации в нормальном эксплуатационном режиме вычисляется как
, (4.3)
где
– количество цепей; S – мощность, передаваемая по линии,
, (4.4)
где
– потери мощности в трансформаторе, которые находятся следующим образом:
(4.5)
(4.6)
Экономически целесообразное сечение определяется по формуле:
,
где Jэк (А/мм2 ) – экономическая плотность тока, определяется по таблице ПУЭ (Приложение 3) .
Принимаем ближайшее стандартное сечение.
Выбранное сечение провода проверяем по допустимой токовой нагрузке в послеаварийном режиме, когда вся мощность протекает по одной цепи.
Сечения проводов выбираются в зависимости от напряжения, расчетной токовой нагрузки, района по гололеду (рис.4.1), материала, количества цепей. Значения величины сечений проводов по механической прочности различных климатических зон приведения в приложении 4
![]()

Рис. 4.1. Карта районирования территории РФ по толщине стенки гололеда
Выбор состоит из выбора трасс и схем внутризаводской сети распределения энергии, выбора местоположения цеховых подстанций, а также выбора способа канализации электроэнергии и определения сечений и вида проводников.
На предприятиях используются различные способы канализации энергии – кабели, СИПы. Трасса линий выбирается кратчайшая, параллельно фундаментам зданий. Пересечения кабелей друг с другом и коммуникациями должны быть сведены к минимуму. Способ и конструктивное выполнение прокладки выбираются в зависимости от количества кабелей, условий трассы, взрывоопасных газов, степени загрязнения почвы, требований эксплуатации, экономических факторов и т.д. Кабельные линии для потребителей I категории выбираются по особым требованиям. Наиболее простой считается прокладка кабелей в траншее. Но в одной траншее их должно быть не более шести. В случае до 20 кабелей и при наличии пересечения с автомобильными и железными дорогами, а также опасности разлития химически активных жидкостей, рекомендуется использовать блоки. При большем числе кабелей целесообразно использовать туннели и каналы (коллекторы). Применяются также эстакады, галереи и стены зданий, где нет взрыво- и пожароопасных производств.
Широкое распространение имеют две основные системы распределения электроэнергии: радиальная и магистральная. Часто они применяются одновременно, дополняя друг друга, что и видно из данной работы.
Питание подстанций 5УР и распределительных пунктов 4УР при нагрузках I категории осуществляется не менее чем двумя радиальными линиями, цеховых трансформаторных подстанций 3УР – от разных секций ГПП и РП. На стороне низкого напряжения двухтрансформаторных ТП предусматривается АВР с помощью секционного автомата.
Магистральные схемы на напряжение 10 кВ целесообразны при распределённых нагрузках, при близком к линейному расположении подстанций на территории предприятия, благоприятном для возможно более прямого прохождения магистралей от ГПП и РП до ТП без обратных потоков энергии и длинных обходов.
Для цехов небольшой мощности II и III категории в качестве источников питания используются распределительные пункты 2УР на низком напряжении, подключаемые к ближайшему цеховому трансформатору. Протяжённость кабельных межцеховых сетей напряжением до 1кВ не рекомендуется более 150 м.
Коммутационные аппараты (разъединитель и выключатель нагрузки) перед цеховым трансформатором устанавливают в следующих случаях:
• подстанция питается от ВЛЭП;
• источник питания находится на территории другой эксплуатирующей организации;
• подстанция более чем на 3 км удалена от источника питания;
• на стороне низкого напряжения не установлен отключающий аппарат;
• При магистральной схеме питания на вводе к цеховому трансформатору в большинстве случаев последовательно устанавливают выключатель нагрузки и предохранитель или разъединитель в комплекте с предохранителем, позволяющие осуществить селективное отключение цеховой ТП при повреждении или неноминальном режиме работы трансформатора. Включать предохранители рекомендуется перед выключателем нагрузки.
При используемом в промышленности для питания по магистрали трансформаторов одной технологической цепочки (процесса) и для вспомогательных или относительно удаленных производств, на вводе трансформатора с номинальной мощностью Sном устанавливаются: при Sном> 630 кВА — предохранитель и выключатель нагрузки; при Sном ≤ 400 кВ А — разъединитель и предохранитель
По месту нахождения на территории предприятия подстанции классифицируются следующим образом:
• внутрицеховые, расположенные внутри производственных зданий с размещением электрооборудования в производственном или отдельном закрытом помещении с выкаткой оборудования в цех;
• встроенные, находящиеся в отдельных помещениях, вписанных в контур основного здания, но с выкаткой трансформаторов и выключателей наружу;
• пристроенные, непосредственно примыкающие к основному зданию;
• отдельностоящие на расстоянии от производственных зданий.
Встроенные и пристроенные подстанции 3УР и 4УР обычно располагаются вдоль одной из длинных сторон цеха, желательно ближайшей к источнику питания, или же, при небольшой ширине цеха – в шахматном порядке вдоль двух его сторон. РП также рекомендуется пристраивать или встраивать в производственные здания и совмещать с ближайшими трансформаторными подстанциями во всех случаях, когда это не вызывает значительного смещения ТП от центра нагрузок. Минимальное расстояние между соседними камерами разных внутрицеховых подстанций, а также между КТП допускается 10 м. Внутрицеховые подстанции могут размещаться только в зданиях со степенью огнестойкости 1– 2 и с производствами, отнесёнными к категориям Г и Д согласно противопожарным нормам. Отдельностоящие ТП применяются, например, при питании от одной подстанции нескольких цехов, невозможности размещения подстанции внутри цехов или у наружных их стен по соображениям производственного или архитектурного характера, при наличии в цехах пожароопасных или взрывоопасных производств.
Область применения силовых кабелей различных марок определяется условиями монтажа кабеля, условиями его эксплуатации и характеристикой помещений и среды, в которых будет осуществляться эксплуатация кабеля. Кабели с бумажной нормально пропитанной изоляцией предназначаются для прокладки на участках с разностью уровней (разность между высшей и низшей точками расположения кабеля по трассе) не более:
Кабели на напряжения 1 и 3 кВ небронированные – 20 м;
Кабели на напряжения 1 и 3 кВ бронированные – 25 м;
» » » 6 и 10 кВ – 15 м;
» » » 20 и 35 кВ – 10 м.
Кабели марок ЦСБ, ЦАСБ, ЦСБГ, ЦАСБГ, ЦСБН, ЦАСБН применяются для случаев вертикальной прокладки кабеля.
В настоящее время кабели с бумажной изоляцией заменяются на кабели с изоляцией из сшитого полиэтилена, которые по своим характеристикам сравнимы или превосходят их. Широкое использование сшитого полиэтилена в качестве материала изоляции силовых кабелей обусловлено его превосходными диэлектрическими качествами и высокой температурной стабильностью, что позволяет увеличить токовые нагрузки как в режиме эксплуатации, так и в режиме короткого замыкания. Характеристики и маркировку кабелей см. в Приложении 7.
Выбор сечения токоведущих жил кабеля производится по экономической плотности тока для нормального режима работы сети. Критерием для выбора сечения кабельных линий служит минимум приведённых затрат.
Выбор сечений кабельных линий осуществляется по расчетной токовой нагрузке. Расчетный ток делится на значение экономической плотности тока для выбранных проводников (Приложение 3). Найденное сечение округляется до ближайшего стандартного меньшего значения.
Для обеспечения нормальных условий работы кабельных линий и правильной работы защищающих аппаратов выбранное сечение должно быть проверено по допустимой длительной нагрузке по нагреву в нормальном и послеаварийном режимах, а также по термической стойкости при токах КЗ.
Проверка по допустимой токовой нагрузке по нагреву в нормальном и послеаварийном режимах проводим по условию
, (5.1)
где
– расчётный ток для проверки кабелей по нагреву;
– фактическая допустимая токовая нагрузка.
Расчетный ток кабеля определяем по выражению:
, (5.2)
где
– мощность, которая передаётся по кабельной линии в нормальном или послеаварийном режимах работы.
Фактическая допустимая токовая нагрузка в нормальном и послеаварийном режимах работы вычисляется по выражению
(5.3)
где
– допустимая длительная токовая нагрузка;
– коэффициент, учитывающий фактическую температуру окружающей среды (нормативная температура для кабелей, проложенных в земле, равна +15 С);
– коэффициент, учитывающий количество проложенных кабелей в траншее, определяется по справочнику;
– коэффициент систематической перегрузки, зависящий от длительности перегрузки и способа прокладки (в земле или в воздухе), а также от коэффициента предварительной нагрузки, kпер=1,15.
Проверка термической стойкости кабеля основана на расчете теплового импульса – количества тепла, которое выделяется в активном сопротивлении кабеля при протекании через него тока короткого замыкания за время начала короткого замыкания до полного погашения дуги при его отключении. Время действия тока зависит от параметров установленной защитной и коммутационной аппаратуры.
(5.4)
где
– максимальное значение расчетного тока короткого замыкания;
– собственное время отключения защитного аппарата; Та – среднее значение постоянной времени апериодической слагающей тока короткого замыкания (Та = 0,01 с); С – постоянная времени, зависящая от вида изоляции и материала жил кабеля, определяется при условии, что температура нагрева проводников при коротком замыкании не превышает допустимую – 150 °С для поливинилхлоридной и резиновой изоляции (Приложение 6).
Результаты заносятся в таблицу 5.1.
Таблица 5.1. Выбор сечения кабельных линий 6-10 кВ
№ | Кабельная трасса | Длина | S, кВА | Iнорм, А | Iпавр, А | Fэк, мм2 | Fн, мм2 | Iдоп, А | Kn | Iдоп.ф, А | Fпр, мм2 |
1 | ГПП-ТП23 | 0,199 | 416,6 | 24,0 | 24,0 | 20,0 | 16 | 75 | 1 | 90,5 | 16 |
Сечения токопроводящей жилы проводов и кабелей выбираются на напряжение 0,4 кВ согласно ПУЭ :
• по условию нагрева длительным расчетным током в нормальном и послеаварийном режимах;
• условиям окружающей среды с учетом условий прокладки.
и проверяются;
• по потере напряжения;
• соответствию току выбранного аппарата защиты;
• по условиям динамической и термической стойкости к токам КЗ.
Проводники любого назначения должны удовлетворять требованиям в отношении предельно допустимого нагрева с учетом не только нормальных, но и послеаварийных режимов, а также режимов в период ремонта и возможных неравномерностей распределения токов между линиями, секциями шин и т. п. При проверке на нагрев принимается получасовой максимум тока, наибольший из средних получасовых токов данного элемента сети.
Расчетная токовая нагрузка линии определяется
(5.5)
Сечение определяют предварительно по расчетному току нормального режима следующим образом:
, (5.6)
где. Iдоп - длительно допустимый ток кабелей (проводов), определяется по справочным материалам,
kп – коэффициент на условия прокладки для кабелей.
, (5.7)
k1 – учитывает температуру окружающей среды; k2 – учитывает влияние способа прокладки;
k3 – учитывает взаимное влияние проложенных рядом кабелей (расстояние между кабелями менее двух диаметров большего из двух кабелей).
Значения коэффициентов определяются по таблицам ПУЭ (Приложение 5)
Проверка на допустимую потерю напряжения сети выполняется по формулам:
В процентах
(5.8)
В вольтах
(5.9)
Проверку на соответствие аппаратам защиты в рамках этого курсового проекта допускается не проводить.
Проверка на термическую стойкость проводится аналогично кабелям на 6–10 кВ. Длительно допустимые токи кабелей различной конструкции можно посмотреть в приложении 8.
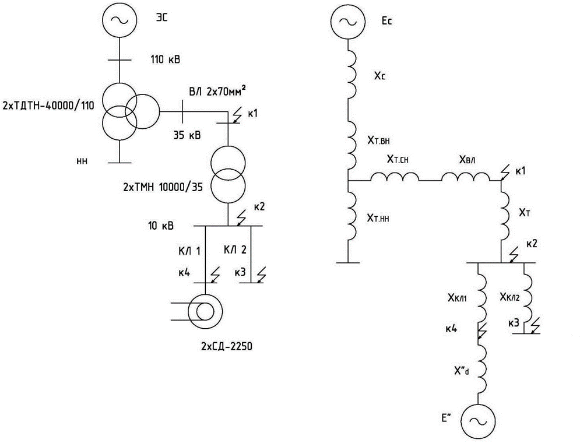
Целью расчета является определение токов КЗ для проверки электрооборудования на электродинамическую и термическую стойкость. Независимо от принятого способа составления в схеме замещения должны быть представлены все элементы исходной расчетной схемы, причем источники энергии (генераторы, синхронные компенсаторы, а также электродвигатели мощностью 100 кВт и более, если они не отделены от расчетной точки КЗ токоограничивающим реактором или трансформатором) и обобщенные нагрузки узлов должны быть введены в схему ЭДС и индуктивными сопротивлениями, соответствующими рассматриваемому моменту времени.
Если исходная схема замещения не содержит замкнутых контуров, то она легко преобразуется в эквивалентную результирующую схему путем последовательного и параллельного соединения элементов и путем замены нескольких источников, имеющих разные ЭДС и разные сопротивления, но присоединенных в одной точке, одним эквивалентным источником.
Расчёт токов КЗ проводим для следующих точек 1,2 и 3: сторона высокого напряжения (35 –220кВ) трансформаторов ГПП; сборные шины 6-10 кВ ГПП.
Токи КЗ на сборных шинах РУ можно принять равными токам КЗ на шинах ГПП, поскольку кабельные линии на предприятии имеют небольшую протяжённость и их сопротивление не может значительно сказаться на величине токов КЗ. Расчётная схема приведена на рис. 6.1.

Рис. 6.1. Расчетная схема и схема замещения для расчета токов КЗ
При выражении параметров элементов эквивалентной схемы замещения в относительных единицах необходимо:
1) задаться базисной мощностью Sб и для одной из ступеней напряжения исходной расчетной схемы, принимаемой за основную, выбрать базисное напряжение Uб.осн;
2) определить базисные напряжения других ступеней напряжения расчетной схемы, используя формулу
(6.1)
где п1, п2, ... пm — коэффициенты трансформации трансформаторов и автотрансформаторов;
3) найти искомые значения ЭДС источников энергии и сопротивлений всех элементов схемы замещения в относительных единицах при выбранных базисных условиях, используя формулы
(6.2)
4) Определить базисный ток для каждой из ступеней по формуле:
(6.3)
5) Определить индуктивные сопротивления всех элементов цепи КЗ. Значения сопротивлений в о.е. определяются по формулам Приложения 9.
Для выбора и проверки электрооборудования по условию электродинамической стойкости необходимо знать наибольшее возможное мгновенное значение тока КЗ, которое называют ударным током и определяют по формуле
(6.4)
где
-значение периодической составляющей тока КЗ в начальный момент времени
- ударный коэффициент
Величина ударного коэффициента
(6.5)
6) Ток трёхфазного КЗ при расчете в относительных единицах определить по выражению:
, (6.6)
где
– суммарное приведенное индуктивное сопротивление от источника питания до точки КЗ.
Степень термического воздействия тока КЗ на проводники и электрические аппараты определяется значением интеграла Джоуля
, (6.7)
где
– ток КЗ в произвольный момент времени t, А;
tоткл – расчетная продолжительность КЗ в электроустановке, с.
Степень термического воздействия тока КЗ на проводники и электрические аппараты допустимо также определять с использованием значений термически эквивалентного тока и расчетной продолжительности КЗ.
Интеграл Джоуля Вк допускается определять приближенно как сумму интегралов от периодической Вк п и апериодической Вк а составляющих тока КЗ
. (6.8)
При КЗ в электрически удаленных от источников энергии (генераторов и электродвигателей) точке значения периодической и апериодической составляющих теплового импульса рассчитываются как
![]()
. (6.9)
При КЗ вблизи группы электродвигателей все электродвигатели заменяются эквивалентным электродвигателем, а все источники объединяются в эквивалентный источник, который является системой по отношению к эквивалентному электродвигателю. При этом значения теплового импульса от периодической и апериодической составляющих тока КЗ определяются как
,
, (6.10)
где
-постоянная времени затухания периодической составляющей тока эквивалентного двигателя;
- постоянная времени затухания схемы
. (6.11)
Результаты расчета заносятся в табл. 6.1.
Таблица 6.1. Расчет токов КЗ
№ | Кабельная трасса | Хкл | ХƩ | IпƩ | IуƩ | ВкƩ |
1 | ГПП-ТП23 | 0,0204 | 0,7724 | 8,63 | 15,41 | 7,14 |
При проверке кабелей на термическую стойкость расчетной точкой КЗ является:
— для одиночных кабелей одной строительной длины — точка КЗ в начале кабеля;
— для одиночных кабелей со ступенчатым соединением по длине — точки КЗ в начале каждого участка нового сечения;
— для двух и более параллельно включенных кабелей одной кабельной линии — в начале каждого кабеля.
Проверка сечений на термическую стойкость выполняется после рас-
чёта токов КЗ. Тогда минимальное термически стойкое к токам КЗ сечение
кабеля
, (6.12)
где
– суммарный ток КЗ от энергосистемы и синхронных электродвигателей;
– приведённое расчётное время КЗ;
– термический коэффициент (функция) для кабелей.
За минимально допустимое по термической стойкости к токам КЗ сечение кабеля принимается ближайшее меньшее стандартное сечение, поскольку в методе расчета заложены допущения, приводящие к завышению токов КЗ.
Из четырёх полученных по расчётам сечений - по экономической плотности тока, нагреву в нормальном и послеаварийном режимах и стойкости к токам КЗ – принимается наибольшее, как удовлетворяющее всем условиям.
Так как все линии распределительной сети 10 кВ длиной менее 1 км, то по потерям напряжения они не проверяются.
Результаты расчета заносим в табл. 7.1.
Таблица 7.1. Проверка кабельных линий по термической стойкости к действию токов КЗ
№ | Кабельная трасса | F по расч току,А | IпƩ, кА | Fкз, мм2 | Fпр, мм2 |
1 | ГПП-ТП23 | 16 | 8,63 | 42,87 | 1 х 50 |
Электрический аппарат (ЭА) – это электрическое устройство, которое используется для включения и отключения электрических цепей, контроля, измерения, защиты, управления и регулирования установок, предназначенных для передачи, преобразования, распределения и потребления электроэнергии. К группе коммутационно-защитных аппаратов, которые надо выбрать в процессе выполнения курсового проекта, относятся выключатели высокого напряжения, предохранители, разъединители, отделители, короткозамыкатели. Подробнее
Выбор выключателей производится по следующим параметрам:
; (7.1)
; (7.2)
(в качестве расчётного тока продолжительного режима принимают ток послеаварийного режима).
, (7.3)
где
– импульс квадратичного тока КЗ, ![]()
– ток термической стойкости,
– время термической стойкости ;
, (7.4)
где
– амплитудное значение тока динамической стойкости, ![]()
– ударный ток короткого замыкания,
;
, (7.5)
где
– номинальный ток отключения, кА;
– установившийся ток трёхфазного короткого замыкания, кА.
Разъединители выбираются аналогично выключателям, за исключением проверки на отключающую способность.
Результаты выбора для всех аппаратов аппаратов заносятся в соответствующие таблицы 7.2.
Таблица 7.2. Выбор выключателей ВН ГПП
Расчетные данные | Паспортные данные | ||
Uсети, кВ |
| Uном, кВ |
|
Iп/ав, А |
| Iном, А |
|
Вк, (кА)²·с |
| Iтерм, кА |
|
tтерм, с |
| ||
I²терм |
| ||
iуд, кА |
| iдин, кА |
|
|
| Iном.откл, кА |
|
Для оценки эффективности и экономичности предлагаемого проектного решения проводится технико-экономический расчет, по результатам которого определяются основные технико-экономические показатели разрабатываемой системы электроснабжения и делаются выводы об экономической целесообразности его реализации.
Технико-экономической расчет состоит из двух частей:
- определение суммарных капиталовложений на проектирование, закупку оборудования, сооружение, пусконаладку и ввод в эксплуатацию системы электроснабжения;
- определение суммарных эксплуатационных затрат, обусловленных функционированием системы электроснабжения в течение ее жизненного цикла или иного временного интервала.
В общем случае совокупная стоимость реализации проекта Собщ (руб.), складывается из следующих составляющих:
, (8.1)
где Cпроект– общая стоимость разработки и согласования проекта, тыс. руб.;
CЭ– общая стоимость электрооборудования, тыс. руб.;
CЭМ– общая стоимость электромонтажных работ, тыс. руб.;
Cд– стоимость дополнительных расходов, тыс. руб.
Данные составляющие могут быть детализированы следующим образом.
1. Общая стоимость разработки и согласования проекта Cпроект, руб.:
, (8.2)
где Cразр– стоимость разработки проекта, тыс. руб. ;
Cсогл– стоимость согласования проекта, тыс. руб..
2. Общая стоимость электрооборудования CЭ, руб.:
, (8.3)
где CЭО– стоимость силового электрооборудования (силовые трансформаторы ГПП, цеховые трансформаторы, оборудование РУ и РП, компенсаторы реактивной мощности и др.), тыс. руб.;
CКЗА– стоимость всех КЗА, используемых в проекте, тыс. руб.;
Cшп– стоимость шинопроводов, тыс. руб.;
CВЛ– стоимость воздушных линий, тыс. руб.;
CКЛ– стоимость кабельных линий, тыс. руб.;
Cучет– стоимость систем учета электроэнергии (измерительные трансформаторы тока и напряжения, электросчетчики и др.), тыс. руб.;
Cучет (руб.) – стоимость осветительных приборов, тыс. руб.;
Cрм (руб.) – стоимость дополнительных расходных материалов, тыс. руб..
3. Общая стоимость электромонтажных работ CЭМ, руб.:
где CЭОм– стоимость монтажа силового электрооборудования, тыс. руб.;
CКЗАм– стоимость монтажа КЗА, тыс. руб.;
Cшпм– стоимость монтажа шинопроводов, тыс. руб.;
CВЛм– стоимость монтажа воздушных линий, тыс. руб.;
CКЛм– стоимость монтажа кабельных линий;
Cучетм– стоимость монтажа систем учета электроэнергии, тыс. руб.;
Cопм– стоимость монтажа осветительных приборов, тыс. руб.;
CПНР– стоимость пуско-наладочных работ, тыс. руб.;
Cзп– дополнительные расходы на оплату труда персонала, тыс. руб..
4. Общая стоимость дополнительных сопутствующих расходов Cд (транспортных, непредвиденных и иных расходов), возникающих с учетом специфики реализации конкретного проекта.
Данные и сведения о технических характеристиках и ценах на оборудование, а также о стоимости услуг, которые рассматриваются в проекте, берутся из сети Интернет с официальных веб-сайтов организаций (изготовителей, продавцов, электромонтажных организаций и т.д.) или из каталогов. На основе проведенных расчетов информация, касающаяся всех расходов, сопутствующих реализации проекта, сводится в систематизированную табличную форму. По результатам произведенной оценки рекомендуется определение удельных технико-экономических показателей (например, удельные капитальные затраты на 1 кВА/кВт установленной мощности предприятия).
Ежегодные эксплуатационные издержки, обусловленные функционированием системы электроснабжения, определяются для всех ее элементов для выбранного расчетного периода с учетом инфляции и фактора времени.
Для учета инфляции необходимо проводить расчет издержек в расчетных ценах, в результате чего прогнозируемые затраты по годам расчетного периода растут в соответствии с принятыми темпами инфляции:
, (8.5)
где t – номер года реализации проекта;
αиt – средний темп инфляции в t-ом году;
Иt – индекс инфляции в t-ом году;
Ct-1 – цена в году, предшествующему t-ому году, тыс. руб.;
Cрt – прогнозная цена в t-ом году, тыс. руб.
Прогнозные значения индексов-дефляторов ежегодного роста цен могут определяться по данным органов государственной власти и иных специализированных организаций.
Оценка эксплуатационных издержек осуществляется в текущих ценах, поэтому учитываемые при их расчете составляющие должны подвергаться операции дисконтирования:
, (8.6)
где Ct – прогнозная цена в t-ом году с учетом дисконтирования, тыс. руб.;
t – номер года, в котором возникают затраты (для первого года t=0);
i – ставка дисконтирования, определяемая в соответствии с [4].
С учетом инфляции и дисконтирования эксплуатационные затраты Cэксплуатацияt в рассматриваемом году складываются из затрат на потери электроэнергии во всех элементах системы (Cпотериt), на запчасти (Cзчt), на расходные материалы и вещества (Cрмвt), затрат на техническое обслуживание (CТОt), текущий (CТРt), средний (ССРt), капитальный ремонты (CКРt), на персонал, эксплуатирующий систему электроснабжения (Cперсоналt) и на налоги (Cналогиt):
. (8.7)
За рассматриваемый расчетный период [t=0; t=N] суммарные эксплуатационные затраты Cэксплуатация , тыс.руб., будут определяться в соответствии с нижеприведенной формулой:
. (8.8)
Цель выполнения – разработка системы электроснабжения объекта, включающего в себя выбор схемы электроснабжения, выбор мощности трансформаторов ГПП, выбор цеховых ТП 6-10/0,4 кВ, проектирование питающей линии электропередачи высокого напряжения, а также линий распределения электроэнергии по территории предприятия.
Для достижения цели необходимо решить следующие задачи.
1. Определить мощность предприятия, выбрать конструктивное исполнение и тип ГПП или РП и место установки.
2. Выбрать трассу и конструктивное исполнение питающих и распределительных сетей, рассчитать сечение проводов и кабелей.
3. Определить количество и мощность цеховых ТП, выбрать их тип и конструктивное исполнение.
4. На основании величин токов КЗ рассчитать и выбрать аппараты защиты линий и трансформаторов.
Основой расчета параметров системы электроснабжения служат нагрузки потребителей, поэтому выполнение курсового проекта начинается с их определения. Исходя из нагрузок потребителей, выбирается сечение провода линий электропередачи, мощность, количество и место установки трансформаторных подстанций. Провод питающей линии электропередачи должен иметь сечение, позволяющее не только передавать необходимое количество электроэнергии, но и выдерживать механическое воздействие таких природных факторов, как гололед и ветер. Поэтому выбранный провод проверяется на механическую прочность.
Для выбора аппаратов и проверки выбранных сечений кабелей на термическую стойкость необходимо рассчитать токи КЗ. Расчет ведется в относительных единицах. Аппараты следует выбирать по каталогам производителей, в пояснительную записку нужно включить характеристики выбранного оборудования в виде «скриншотов» со страниц сайта производителя.
Технико-экономический расчет составляется в соответствии с заданием консультанта по курсовому проекту и может содержать сравнение вариантов построения схемы, сравнение разных напряжений питания, различного оборудования, разных способов компенсации РМ и др.
Пояснительная записка должна соответствовать заданию и составляется по следующему плану.
Введение
1. Характеристика объекта, категории потребителей, выбор схемы электроснабжения.
2. Расчет электрических нагрузок.
3. Выбор питающего напряжения.
4. Компенсация реактивной мощности.
5. Выбор числа и мощности силовых трансформаторов для подстанций.
6. Расчёт токов короткого замыкания.
7. Выбор питающей линий.
8. Выбор электрооборудования подстанции.
9. Технико-экономический расчет.
Заключение.
Список использованных источников.
Объем графической части – графический материал проекта выполняется на двух листах формата А1:
– лист 1 «Схема электрическая принципиальная» электроснабжения с указанием обозначений всех элементов, приведенных на схеме. Для воздушных и кабельных линий указать также их длину;
– лист 2 «Генеральный план предприятия» с трассами электрических сетей высокого и низкого напряжения, местоположением ГПП, местоположением цеховых ТП и РП высокого напряженния, а также СП в цехах, где отсутствуют ТП.
Оформление пояснительной записки и чертежей должно соответствовать действующим стандартам.
Исходные данные на проектирование.
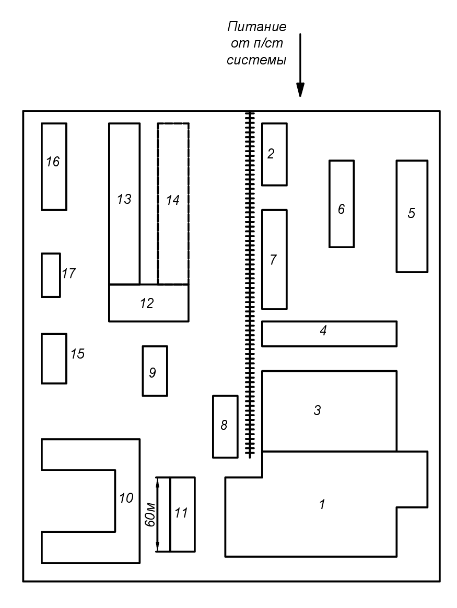
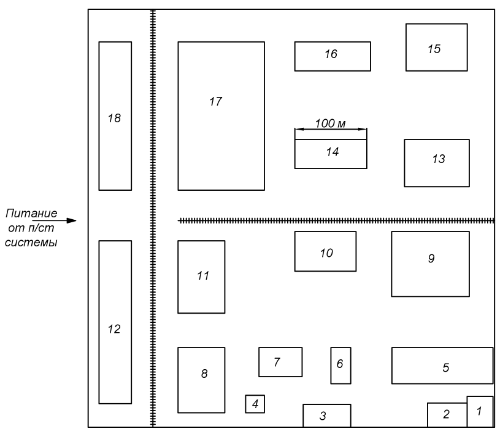
1. Генеральный план рудника – рис. 9.1.
2. Сведения об электрических нагрузках рудника – табл. 9.1.
3. Питание возможно осуществить от подстанции энергосистемы, на которой установлены два трехобмоточных трансформатора мощностью 10000 кВА каждый, с первичным напряжением 110 кВ и вторичным – 35, 20, 10 и 6 кВ.
4. Мощность системы 400 МВА; реактивное сопротивление системы на стороне 110 кВ, отнесенное к мощности системы, 0,8.
5.Расстояние от подстанции энергосистемы до рудника – 8,3 км.
Таблица 9.1. Ведомость электрических нагрузок рудника
№ по плану | Наименование цеха | Установленная мощность, кВт |
1 2 3 4 5 6 7 8
9
10 11 | Подъем руды из штолен, Спуск и подъем людей в рудник Административный корпус, столовая Насосная Насосная (6 кВ) Аварийный подъем Элеватор Бремсберг Компрессорная Компрессорная (6 кВ) Вентиляционная установка Вентиляционная установка (6 кВ) Склад материалов и оборудования Ремонтный цех Освещение цехов и территории рудника | 1600 240 320 500 1200 300 230 450 260 2880 1200 800 100 640 Определить по площади |

Рис. 9.1. Генплан никелевого рудника
Исходные данные на проектирование.
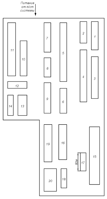
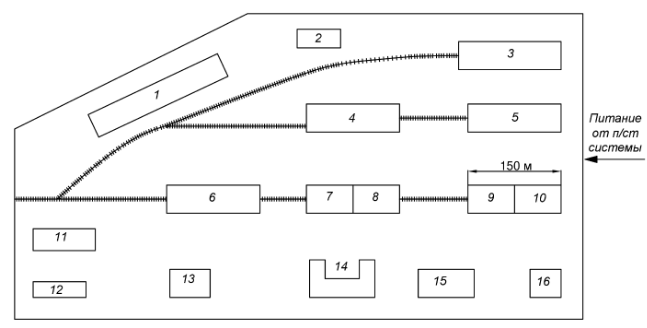
1. Генеральный план завода – рис. 9.2.
2. Сведения об электрических нагрузках завода – табл. 9.2.
3. Питание возможно осуществить от подстанции энергосистемы, на которой установлены два трехобмоточных трансформатора мощностью 20000 кВА каждый, с первичным напряжением 110 кВ и вторичным – 35, 20, 10 и 6 кв.
4. Мощность системы 600 МВА; реактивное сопротивление системы на стороне 110 кВ, отнесенное к мощности системы, 0.7.
5. Расстояние от подстанции до завода 7,1 км.
Таблица 9.2. Ведомость электрических нагрузок завода
№ по плану | Наименование деха | Установленная мощность, кВт |
1 2 3 4 5 6 7 8 9
10 11 | Склад готовой продукции Механический цех Сборочный цех Кузнечный цех Литейный цех Инструментальный цех с термическим отделением Блок ремонтных цехов Насосная Компрессорная Компрессорная (6 кВ) Столовая Заводоуправление, лаборатории, конструкторское бюро Освещение цехов и территории завода | 120 2300 1650 1320 1980 1210 800 720 250 2180 260 190 Определить по площади |

Рис. 9.2. Генплан станкостроительного завода
Исходные данные на проектирование.
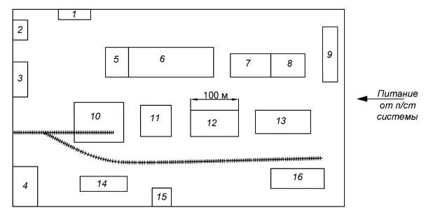
1. Генеральный план фабрики – рис. 9.3.
2. Сведения об электрических нагрузках фабрики – табл. 9.3.
3. Питание возможно осуществить от подстанции энергосистемы, на которой установлены два трехобмоточиых трансформатора мощностью 31500 кВА каждый, с первичным напряжением 110 кВ и вторичным – 35, 20, 10 и 6 кВ.
4. Мощность системы 800 МВА; реактивное сопротивление системы на стороне 110 кВ, отнесенное к мощности системы, 0,6.
6. Расстояние от подстанции энергосистемы до фабрики 7,5 км.
Таблица 9.3. Ведомость электрических нагрузок ситценабивной фабрики
№ по плану | Наименование деха | Установленная мощность, кВт |
1 2 3 4 5
6 7 8 9 10 11 12 13 | Склад готовой продукции Отбельный цех Красильный цех Котельная Насосная Насосная (6 кВ) Механический цех Склад оборудования и запасных частей Лабораторный корпус Столовая Управление фабрики Проходная Медпункт Гараж Освещение цехов и территории фабрики | 60 1440 1950 700 680 720 840 30 180 210 70 20 130 80 Определить по площади |

Рис. 9.3 Генплан ситценабивной фабрики
Исходные данные на проектирование.
1. Генеральный план комбината – рис. 9.4.
2. Сведения об электрических нагрузках комбината – табл. 9.4.
3. Питание возможно осуществить от подстанции энергосистемы, на которой установлены два трехобмоточных трансформатора мощностью 40500 кВА каждый, с первичным напряжением 110 кВ и вторичным – 35, 20, 10 и 6 кВ.
4. Мощность системы 900 МВА; реактивное сопротивление системы на стороне 110 кВ, отнесенное к мощности системы, 0,4.
5. Расстояние от подстанции энергосистемы до комбината – 11 км.
Таблица 9.4 Ведомость электрических нагрузок комбината
№ по плану | Наименование деха | Установленная мощность, кВт |
1 2 3 4 5 6 7 8
9 10 11
| Цех рафинации Цех отражательных печей Аглоцех Склады полуфабриката Столовая Управление комбината Склад готовой продукции Насосная Насосная (6 кВ) Котельная Электроцех Ремонтно-механический цех Освещение цехов и территории комбината | 3000 1480 860 190 170 100 330 600 1200 400 180 260 Определить по площади |

Рис. 9.4. Генплан комбината
Исходные данные на проектирование.
1. Генеральный план завода — рис. 9.5.
2. Сведения об электрических нагрузках завода – табл. 9.5.
3. Питание возможно осуществить от подстанции энергосистемы, на которой установлены два трехобмоточных трансформатора мощностью 7500 кВА каждый, с первичным напряжением 110 кВ и вторичным – 35, 20, 10 и 6 кВ.
4. Мощность системы 300 МВА; реактивное сопротивление системы на стороне 110 кВ, отнесенное к мощности системы, 0,9.
5. Расстояние от подстанции энергосистемы до завода 4,5 км.
Таблица 9.5. Ведомость электрических нагрузок завода
№ по плану | Наименование цеха | Установленная мощность, кВт |
1 2 3 4 5 6 7 8 9 10 11
| Механический цех Штамповочный цех Сборочный цех Склад готовой продукции Склад оборудования и запасных частей Инструментальный цех Ремонтно-механический цех Центральная лаборатория Насосная Гараж Заводоуправление, СКБ и столовая Освещение цехов и территории завода | 1800 960 720 40 50 1180 420 300 380 150 290 Определить по площади |

Рис. 9.5. Генплан часового завода
Исходные данные на проектирование.
1. Генеральный план завода – рис. 9.6.
2. Сведения об электрических нагрузках завода – табл. 9.6.
3. Питание возможно осуществить от подстанции энергосистемы, на которой установлены два трехобмоточных трансформатора мощностью 10000 кВА каждый, с первичным напряжением 110 кВ и вторичным – 35, 20, 10 и 6 кВ.
4. Мощность системы 500 МВА, реактивное сопротивление системы на стороне 110 кВ, отнесенное к мощности системы, 0,7.
5. Расстояние от подстанции энергосистемы до завода 7,2 км.
Таблица 9.6. Ведомость электрических нагрузок завода
№ по плану | Наименование цеха
| Установленная мощность, кВт |
1 2 3 4 5 6 7 8 9 10 11 12 13 | Литейная, печи стального и цветного литья Литейная, печи стального,и цветного литья (6 кВ) Механический цех Ремонтно-механический цех Малярный цех (краскопульпы) Склад оборудования и запасных частей Кузовная Проходная Цех холодной обкатки автодвигателей Цех горячей обкатки автодвигателей Столовая Гараж Насосная Освещение цехов п территории завода | 700 1050 890 280 230 40 400 10 520 700 200 80 250 Определить по площади |

Рис. 9.6. Генплан авторемонтного завода
Исходные, данные на проектирование.
1. Генеральный план завода — рис. 9.7.
2. Сведения об электрических нагрузках завода—табл. 9.7.
3. Питание возможно осуществить от подстанции энергосистемы, на которой установлены два трехобмоточных трансформатора -мощностью 15000 кВА каждый, с первичным напряжением 110 кВ и вторичным — 35, 20, 10 и 6 кВ.
4. Мощность системы 800 МВА; реакхивное сопротивление системы на стороне 110 кВ, отнесенное к мощности системы, 0,5.
5. Расстояние от подстанции энергосистемы до завода 12,7 км.
Таблица 9.7. Ведомость электрических нагрузок завода
№ по плану | Наименование цеха
| Установленная мощность, кВт |
1 2 3 4 5 6 7 8 9 10 11
| Цех рафинации Выпарочное отделение Цех резки и варки свеклы Склад свеклы (транспортеры) Склад готовой продукции Насосная Ремонтно-механический цех ЦЗЛ Столовая Гараж Заводоуправление Освещение цехов и территории завода | 820 560 850 340 160 700 480 120 260 80 90 Определить по площади |

Рис. 9.7 Генплан сахарного завода
Исходные данные на проектирование.
1. Генеральный план комбината — рис. 9.8.
2. Сведения об электрических нагрузках комбината — табл. 9.8.
3. Питание возможно осуществить от подстанции энергосистемы, на которой установлены два трехобмоточных трансформатора мощностью 20000 кВА каждый, с первичным напряжением 110 кВ и вторичным — 35, 20, 10 и 6 кВ.
4. Мощность системы 1000 МВА; реактивное сопротивление системы на стороне 110 кВ, отнесенное к мощности системы, 0,3.
5. Расстояние от подстанции энергосистемы до комбината 10,2 км.
Таблица 9.8 Ведомость электрических нагрузок комбината
№ по плану | Наименование цеха ' | Установленная мощность, кВт |
1 2 3 4 5 6 7 8 9 10 11 12 13 | Прядильный цех Ткацкий цех Красильный цех Котельная Механический цех Насосная Материальный склад Столярный цех Электроремонтный цех Заводоуправление, СКБ Столовая Центральная лаборатория Склад леса Освещение цехов и территории комбината | 1800 2600 640 800 940 450 70 260 190 100 280 270 30 Определить по площади |

Рис. 9.8. Генплан меланжевого комбината
Исходные данные на проектирование.
1. Генеральный план завода — рис. 9.9.
2. Сведения об электрических нагрузках завода—табл.9.9.
3. Питание возможно осуществить от подстанции энергосистемы, на которой установлены два трехобмоточных трансформатора мощностью 31500 кВА каждый, с первичным напряжением 110 кВ и вторичным — 35, 20, 10 и 6 кВ.
4. Мощность системы 900 МВА реактивное сопротивление системы на стороне 110 кВ, отнесенное к мощности системы, 0,5.
5. Расстояние от подстанции энергосистемы до завода 8,1 км.
Таблица 9.9 Ведомость электрических нагрузок завода
№ по плану | Наименование цеха | Установленная мощность, кВт |
1 2 3 4 5 6 7
8 9 10
11 12 13 | Склад продукции Механический цех Склад оборудования Гараж Заводоуправление и столовая Кузнечный цех Литейный цех Литейный цех (6 кВ) Ремонтно-механический цех Штамповочный цех Компрессорная Компрессорная (6 кв) Насосная Котельная Сборочный цех Освещение цехов и территории завода | 50 1800 60 100 270 400 730 1400 320 550 460 1280 390 450 420 Определить по площади. |

Рис. 9.9. Генплан завода маслоочистительных машин
Исходные данные на проектирование.
1. Генеральный план завода – рис. 9.10.
2. Сведения об электрических нагрузках завода – табл. 9.10.
3. Питание возможно осуществить от подстанции энергосистемы, на которой установлены два трехобмоточйых трансформатора мощностью 40500 кВА каждый, с первичным напряжением 110 кВ и вторичным — 35, 20, 10 и 6 кВ.
4. Мощность системы 1200 МВА; реактивное сопротивление системы на стороне 110 кВ, отнесенное к мощности системы, 0,1.
5. Расстояние от подстанции энергосистемы до завода 10,8 км.
Таблица 9.10. Ведомость электрических нагрузок завода
№ по плану | Наименование цеха | Установленная мощность, кВт |
1 2 3 4 5 6 7 8 9 10
| Цех эмалирования Цех волочения Ремонтно-механический цех Цех микрокабеля Корпус № 1 Корпус № 2 Склад готовой продукции Склад огнеопасных материалов Столовая Насосная Сторонние потребители: маслозавод база «спецстрой» Освещение цехов' и территории завода | 3930 1950 410 5200 3000 3600 70 40 300 360
2600 1800 Определить по площади. |

Рис. 9.10. Генплан кабельного завода
Исходные данные на проектирование:
1. Генеральный план завода — рис. 9.11.
2. Сведения об электрических нагрузках завода—табл. 9.11.
3. Питание возможно осуществить от подстанции энергосистемы, на которой установлены два трехобмоточпых трансформатора мощностью 20000 кВА каждый, с первичным напряжением 110 кВ и вторичным — 35, 20, 10 и 6 кВ.
4. Мощность системы 750 МВА; реактивное сопротивление системы на стороне 110 кВ, отнесенное к мощности системы, 0,7.
5. Расстояние от подстанции энергосистемы до завода 7,9 км.
Таблица 9.11. Ведомость электрических нагрузок завода
№ по плану | Наименование цеха | Установленная мощность, кВт |
1 2 3 4 5
6 7 8 9 10 11 12 | Главный корпус (пресса) Инструментальный цех Ремонтно-механический цех Насосная Компрессорная Компрессорная (6 кВ) Кузнечный цех Термический цех Проходная Столовая ЦЗЛ Заводоуправление Материальный склад Освещение цехов и территории завода | 3020 1580 730 760 500 1200 1360 2500 20 310 240 90 70 Определить по площади. |

Рис. 9.11. Генплан машиностроительного завода
Исходные данные на проектирование.
1. Генеральный план завода — рис. 9.12.
2. Сведения об электрических нагрузках завода—табл. 9.12.
3. Питание возможно осуществить от подстанции энергосистемы, на которой установлены два. трехобмоточных трансформатора мощностью 15000 кВА каждый, с первичным напряжением 110 кВ и вторичным — 35, 20, 10 и 6 кВ.
4. Мощность системы 900 МВА; реактивное сопротивление системы на стороне 110 кВ, отнесенное к мощности системы, 0,5.
5. Расстояние от подстанции энергосистемы до завода 12,9 км.
Таблица 9.12. Ведомость электрических нагрузок завода
№ по плану | Наименование цеха | Установленная мощность, кВт |
1
2 3 4 5 6
7 8 9 10 11 12 13 | Малярный, такелажно-парусной и сборочио-установочиый цехи Компрессорная Корпусно-котельный цех Ремонтно-механический цех Кузнечный цех Литейная Литейная (6 кВ) Склад моделей Насосная Заводоуправление, столовая, СКБ Механический цех Модельный цех Склад Деревообрабатывающий цех Освещение цехов и территории завода |
400 800 1680 320 460 1300 1040 50 410 290 1400 310 40 430 Определить по площади. |

Рис. 9.12. Генплан судоремонтного завода
Исходные данные на проектирование.
1. Генеральный план завода – рис. 9.13.
2. Сведения об электрических нагрузках завода – табл. 9.13.
3. Питание возможно осуществить от подстанции энергосистемы, на которой установлены два трехобмоточных трансформатора мощностью 20000 кВА каждый, с первичным напряжением 110 кВ и вторичным – 35, 20, 10 и 6 кВ.
4. Мощность системы 700 МВА; реактивное сопротивление системы на стороне 110 кВ, отнесенное к мощности системы, 0.7:
5. Расстояние от подстанции энергосистемы до завода 7,8 км.
Таблица 9.13. Ведомость электрических нагрузок завода
№ по плану | Наименование цеха | Установленная мощность, кВт |
1 2 3 4
5 6 7 8 9 10 11 12 | Гараж Заводоуправление, ЦЗЛ, столовая Проходная Термический цех Термический цех (6 кВ) Механический цех № 1 Заготовочный цех Ремонтно-механический цех Материальный склад Котельная и электроцех Закалочный цех Насосная Механический цех № 2 Освещение цехов и территории завода | 80 390 20 1000 1200 1100 700 450 60 800 1600 480 2600 Определить по площади. |

Рис. 9.13. Генплан завода по производству запасных деталей к тракторам
Исходные данные на проектирование.
1. Генеральный план фабрики — рис. 9.14.
2. Сведения об . электрических нагрузках фабрики — табл. 9.14.
3. Питание возможно осуществить от подстанции энергосистемы, на которой установлены два трехобмоточных трансформатора мощностью 1100 кВА каждый, с первичным'напряжением 110 кВ и вторичным – 35, 20, 10 и 6 кВ.
4. Мощность системы 1100 МВА; реактивное сопротивление системы, на стороне 110 кВ, отнесенное к мощности системы, 0,2.
5. Расстояние от подстанции энергосистемы -до фабрики 8,9 км.
Таблица 9.14. Ведомость электрических нагрузок фабрики
№ по плану | Наименование цеха | Установленная мощность, кВт |
1 2 3 4 5 6 7 8 9 10 11 12 13
14 | Гараж Насосная Прядильный цех Ткацкий цех Красильный цех Центральная лаборатория Склад готовой продукции 1 Управление фабрики и столовая Механический цех Столярный цех Электроремонтный цех Склад угля Склад оборудования и запасных частей Склад готовой продукции 2 Освещение цехов и территории фабрики | 50 400 1800 2950 870 250 70 180 600 300 360 200 100
50 Определить по площади. |

Рис. 9.14. Генплан текстильной фабрики
Исходные данные на проектирование.
Таблица 9.15. Ведомость электрических нагрузок комбината
№ по плану | Наименование цеха | Установленная мощность, кВт |
1 | Колбасный завод | 2800 |
2 | Гофтара | 350 |
3 | Холодильник № 1 | 417 |
4 | Завод первичной переработки продуктов | 1890 |
5 | Лайвстак | 100 |
6 | Завод технических фабрикатов | 990 |
7 | Завод сыворотки | 380 |
8 | ЦХВУ ЦХВУ (6 кВ) | 2860 3000 |
9 | Конденсаторная | 370 |
10 | Институт | 500 |
11 | Машиносчетная станция | 240 |
12 | Заводоуправление | 50 |
13 | Холодильник № 2 | 520 |
14 | Ремонтно-механический цех | по заданию преподавателя |
15 | Теплоцех | 1200 |
16 | Ремонтно-строительные мастерские | 190 |
17 | Прачечная | 100 |
| Сторонние потребители (автобаза) | 240 |
| Освещение цехов (заводов) и территории | Определить по площади |

Рис.9.15. Генплан мясокомбината
Исходные данные на проектирование.
Таблица 9.16. Ведомость электрических нагрузок завода
№ по плану | Наименование цеха | Установленная мощность, кВт |
1 | Цех антрахиноновых красителей | 370 |
2 | Бытовой корпус № 1 | 50 |
3 | Цех азокрасителей № 1 | 800 |
4 | Цех азокрасителей № 2 | 1000 |
5 | Цех бромаминовой кислоты № 1 | 630 |
6 | Цех бромаминовой кислоты № 1 | 320 |
7 | Цех ацетонанила | 500 |
8 | Бытовой корпус № 2 | 50 |
9 | Цех красителей | 500 |
10 | Цех текстильно-вспомогательных веществ | 300 |
11 | Цех полупродуктов № 1 | 3180 |
12 | Бытовой корпус № 3 | 50 |
13 | Холодильная установка Холодильная установка (синхронные двигатели 6 кВ) | 120 4420 |
14 | Цех полупродуктов № 2 | 625 |
15 | Выпускной цех | 2770 |
16 | Вспомогательный цех | 1090 |
17 | Бытовой корпус № 4 | 50 |
18 | Ремонтно-механический цех | 120 |
19 | Компрессорная Компрессорная (синхронные двигатели 6 кВ) | 100 3640 |
20 | Цех тиурама | 1000 |
| Освещение цехов и территории | Определить по площади |

Рис.9.16. Генплан химического завода по производству красителей
Исходные данные на проектирование.
Таблица 9.17. Ведомость электрических нагрузок фабрики
№ по плану | Наименование цеха | Установленная мощность, кВт |
1 | Чулочно-вязальный цех № 1 | 800 |
2 | Чулочно-вязальный цех № 2 | 400 |
3 | Котельный цех | 680 |
4 | Красильный цех | 600 |
5 | Формовочно-выпускной цех | 500 |
6 | Отбельно-красильный цех | 700 |
7 | Сушильно-выпускной цех | 820 |
8 | Осново-вязальный цех | 700 |
9 | Трикотажный и отделочно-выпускной цехи | 450 |
10 | Закройно-швейный цех № 1 | 200 |
11 | Закройно-швейный цех № 2 | 360 |
12 | Ремонтно-механический цех | 150 |
13 | Заводоуправление и столовая | 310 |
| Освещение цехов и территории | Определить по площади |

Рис.9.17. Генплан чулочно-трикотажной фабрики
Исходные данные на проектирование.
Таблица 9.18. Ведомость электрических нагрузок завода
№ по плану | Наименование цеха | Установленная мощность, кВт |
1 | Шурупный цех № 1 | 1280 |
2 | Железопроволочный цех Железопроволочный цех (6 кВ) | 21600 900 |
3 | Цех биметалла Цех биметалла (6 кВ) | 6230 2600 |
4 | Ремонтно-механический цех | по заданию преподавателя |
5 | Шурупный цех № 2 | 1310 |
6 | Болто-заклепочный цех | 2520 |
7 | Проволочный цех | 330 |
8 | Гроздильный цех | 660 |
9 | Электродный цех | 1740 |
10 | Котельная | 450 |
11 | Ремонтно-строительный цех | 2900 |
12 | Склад № 1 | 80 |
13 | Склад № 2 | 40 |
14 | Склад № 3 | 100 |
15 | Склад № 4 | 120 |
16 | Склад № 5 | 30 |
17 | Мазутное хозяйство | 50 |
18 | Известково-купоросное хозяйство | 30 |
19 | Столовая | 160 |
20 | Цех ширпотреба | 380 |
21 | Проволочно-сварочный цех | 8670 |
22 | Цех металлической сетки | 780 |
23 | Сеточный цех № 1 | 700 |
24 | Сеточный цех № 1 | 770 |
25 | Нейтрализация | 12500 |
26 | Компрессорная Компрессорная (6кВ) | 390 1120 |
27 | Заводоуправление | 60 |
28 | Насосная | 900 |
| Освещение цехов и территории | Определить по площади |

Рис.9.18. Генплан метизно-металлургического завода
Исходные данные на проектирование.
Таблица 9.19. Ведомость электрических нагрузок завода
№ по плану | Наименование цеха | Установленная мощность, кВт |
1 | Столовая | 320 |
2 | Заводоуправление | 100 |
3 | Гараж | 180 |
4 | насосная | 400 |
5 | СКБ, ЦЗЛ | 240 |
6 | Компрессорная | 360 |
Компрессорная (6 кВ) | 4320 | |
7 | Ремонтно-механический цех | 170 |
8 | Механический цех мелких деталей | 600 |
9 | Материальный склад | 150 |
10 | Цех сборки двигателей и испытательная установка | 800 |
Цех сборки двигателей и испытательная установка (6кВ) | 1680 | |
11 | Штамповочный цех деталей корпуса самолета | 960 |
12 | Штамповочный цех деталей покрытия самолета | 720 |
13 | Литейная № 1 | 1600 |
Литейная № 1 (6 кВ) | 960 | |
14 | Цех обработки блоков двигателей | 1000 |
15 | Литейная № 2 | 1080 |
Литейная № 2 (6 кВ) | 800 | |
16 | Цех обработки деталей двигателей | 870 |
17 | Сборочный цех № 2 | 1200 |
18 | Сборочный цех № 1 | 690 |
| Освещение цехов и территории | Определить по площади |

Рис.9.19. Генплан авиационного завода
Исходные данные на проектирование.
Таблица 9.20. Ведомость электрических нагрузок фабрики
№ по плану | Наименование цеха | Установленная мощность, кВт |
1 | Спекательный цех | 1825 |
Спекательный цех (синхронные двигатели 6 кВ) | 5100 | |
2 | Котельная | 250 |
3 | Материальный склад | 100 |
4 | Управление фабрики | 80 |
5 | Лаборатория | 120 |
6 | Цех фильтрации | 810 |
7 | Склад рудной мелочи | 110 |
8 | Ремонтно-механический цех | 110 |
9 | Насосная № 1 | 150 |
Насосная № 1 (6 кВ) | 5200 | |
10 | Цех шихты | 1200 |
11 | Перегрузка | 1480 |
Перегрузка (6кВ) | 300 | |
12 | Насосная № 2 | 80 |
Насосная № 2 (6 кВ) | 1250 | |
13 | Столовая | 260 |
14 | Гараж | 50 |
| Освещение цехов и территории | Определить по площади |

Рис.9.20. Генплан агломерационной фабрики металургического комбината
Исходные данные на проектирование.
Таблица 9.21. Ведомость электрических нагрузок завода
№ по плану | Наименование цеха | Установленная мощность, кВт |
1 | Механический цех | 3600 |
2 | Моторный цех | 300 |
Моторный цех (10 кВ) (СД 2х1000) | 200 | |
3 | Сборочный цех | 2700 |
4 | Прессовый цех | 1500 |
Прессовый цех (10 кВ) (печи сопротивления 5х400) | 2000 | |
5 | Инструментальный цех | 2500 |
6 | Литейный цех | 1400 |
Литейный цех (10кВ) (печи сопротивления 4х1000) | 4000 | |
7 | Кузнечный цех | 2600 |
8 | Компрессорная станция (10 кв) (СД 4 шт.) | 4320 |
9 | Лаборатория | 600 |
10 | Ремонтно-механический цех | 520 |
11 | Склад запасных частей | 80 |
12 | Заготовительный цех | 1100 |
13 | Склад строительных материалов | 120 |
14 | Котельная | 280 |
15 | газогенераторная | 90 |
16 | Склад топлива | 180 |
17 | Насосная станция | 400 |
Насосная станция (10 кВ) | 400 | |
18 | Гараж | 130 |
19 | Заводоуправление | 210 |
20 | Проходная | 20 |
| Освещение цехов и территории | Определить по площади |

Рис. 9.21. Генплан машиностроительного завода
Исходные данные на проектирование.
Таблица 9.22. Ведомость электрических нагрузок фабрики
№ по плану | Наименование цеха | Установленная мощность, кВт |
1 | Склад | 80 |
2 | Котельная | 250 |
3 | Пульпонасосная | 100 |
Пульпонасосная (синхронные двигатели 6кВ) | 4500 | |
4 | Склад сульфидных руд | 1000 |
5 | Ремонтно-механический цех | по заданию преподавателя |
6 | Цех обогащения | 2600 |
7 | Цех конусного дробления (6кВ) | 470 |
8 | Дробильно-промывочный цех № 1 | 965 |
Дробильно-промывочный цех № 1 (6 кВ) | 1000 | |
9 | Насосная станция | 80 |
Насосная станция (6 кВ) | 405 | |
10 | Сушильный цех (6кВ) | 350 |
11 | Дробильно-промывочный цех № 2 | 700 |
Дробильно-промывочный цех № 2 (6 кВ) | 800 | |
12 | Дробильное отделение сульфидного цеха | 4800 |
Дробильное отделение сульфидного цеха (6 кВ) | 420 | |
13 | Цех дробления | 3000 |
14 | Цех мокро-магнитной сепарации | 2100 |
Цех мокро-магнитной сепарации (6 кВ) | 2570 | |
15 | Гараж | 120 |
16 | Управление фабрики | 90 |
17 | Столовая | 260 |
18 | Шламонасосная (6 кВ) | 1440 |
| Освещение цехов и территории | Определить по площади |

Рис. 9.22. Генплан обогатительной фабрики металлургического комбината
Исходные данные на проектирование.
Таблица 9.23. Ведомость электрических нагрузок фабрики
№ по плану | Наименование цеха | Установленная мощность, кВт |
1 | Кислородный цех (насосы) | 600 |
2 | Ремонтно-механический цех | по заданию преподавателя |
3 | Склад (лесотаски, пилы) | 450 |
4 | Насосная | 100 |
Насосная (10 кВ) | 600 | |
5 | Цех бумажных машин № 1 | 700 |
6 | Трепковарка | 150 |
7 | Дереворубка | 200 |
8 | Варочное отделение | 260 |
9 | Отбельный цех | 150 |
10 | Цех бумажных машин № 2 | 700 |
11 | Цех бумажных машин № 3 | 1000 |
12 | Цех бумажных машин № 4 | 1500 |
13 | Кислородная станция | 250 |
Кислородная станция (10 кВ) | 400 | |
14 | Учебные мастерские | 280 |
15 | Цех бумажных машин № 5 | 2100 |
16 | Управление фабрики, лаборатории, столовая | 360 |
17 | Склад | 50 |
| Освещение цехов и территории | Определить по площади |

Рис.9.23. Генплан бумажной фабрики
Исходные данные на проектирование.
Генеральный план завода – рис.9.24.
Сведения об электрических нагрузках завода – табл. 9.24.
Питание возможно осуществить от подстанции энергосистемы, на которой установлены два трехобмоточных трансформатора мощностью 60000 КВА каждый с первичным напряжением 110 кВ и вторичным 35, 20, 10 и 6 кВ.
Мощность системы 1350 МВА, реактивное сопротивление системы на стороне 110 кВ, отнесенное к мощности системы 0,1.
Расстояние до подстанции 15,0 км.
Таблица 9.24. Ведомость электрических нагрузок завода
№ по плану | Наименование цеха | Установленная мощность, кВт |
1 | Склад готовой продукции | 180 |
2 | Склад вспомогательных материалов | 40 |
3 | Цех сталеплавильных печей № 1 | 12000 |
Цех сталеплавильных печей № 1 (10 кВ) | 25000 | |
4 | Цех сталеплавильных печей № 2 | 7000 |
Цех сталеплавильных печей № 2 (10 кВ) | 14000 | |
5 | Прокатный цех | 8600 |
Прокатный цех (10 кВ) | 10000 | |
6 | Цех сталеплавильных печей № 3 | 4200 |
Цех сталеплавильных печей № 3 (10 кВ) | 8000 | |
7 | Столярный цех | 420 |
8 | Ремонтно-механический цех | по заданию преподавателя |
9 | Кузнечный цех | 640 |
10 | Электроцех | 860 |
11 | Склад оборудования | 100 |
12 | Гараж | 160 |
13 | Насосная | 700 |
Насосная (10 кВ) | 3600 | |
14 | Заводоуправление, столовая и СКБ | 400 |
15 | ЦЗЛ | 520 |
16 | Компрессорная | 600 |
Компрессорная (10 кВ) | 4720 | |
| Освещение цехов и территории | Определить по площади |

Рис. 9.24. Генплан завода электросталей
Исходные данные на проектирование.
Таблица 9.25. Ведомость электрических нагрузок завода
№ по плану | Наименование цеха | Установленная мощность, кВт |
1 | Гараж | 210 |
2 | Столовая | 320 |
3 | Заводоуправдение | 80 |
4 | ЦЗЛ | 360 |
5 | Компрессорная | 700 |
Компрессорная (10 кВ) | 3620 | |
6 | Цех электрических печей № 1 | 10000 |
Цех электрических печей № 1 (10 кВ) | 16000 | |
7 | Кузнечный цех | 500 |
8 | Столярный цех | 420 |
9 | Электроцех | 670 |
10 | Склад кварцита, коксита и стружки | 400 |
11 | Цех дробления и подготовки шихты | 840 |
12 | Цех электрических печей № 2 | 8000 |
Цех электрических печей № 2 (10 кВ) | 12000 | |
13 | Цех электрических печей № 2 | 13000 |
Цех электрических печей № 2 (10 кВ) | 24000 | |
14 | Ремонтно-механический цех | по заданию преподавателя |
15 | Насосная | 800 |
Насосная (10 кв) | 4600 | |
16 | Склад оборудования и запасных частей | 100 |
| Освещение цехов и территории | Определить по площади |

Рис. 9.25. Генплан завода ферросплавов
Исходные данные на проектирование.
Таблица 9.26. Ведомость электрических нагрузок фабрики
№ по плану | Наименование цеха | Установленная мощность, кВт |
1 | Приемная бункера топлива | 260 |
2 | Цех дробления и перегрузочный узел | 420 |
Цех дробления и перегрузочный узел (6 кВ) | 870 | |
3 | Цех измельчения топлива и чугунной стружки | 660 |
Цех измельчения топлива и чугунной стружки (6 кВ) | 1800 | |
4 | Шихтовые бункера | 680 |
5 | Цех первичного смешивания | 350 |
6 | Цех агломерации | 3800 |
7 | Цех эксгаустеров | 120 |
Цех эксгаустеров (6 кВ) | 8000 | |
8 | Перегрузочное устройство агломерата | 380 |
9 | Тракт постели и возврата | 110 |
10 | Насосная | 360 |
11 | Контора аглофабрики и лаборатории | 80 |
12 | Гараж | 100 |
13 | Столовая | 220 |
14 | Ремонтно-механический цех | по заданию преподавателя |
15 | Материальный склад | 80 |
| Освещение цехов и территории | Определить по площади |

Рис. 9.26. Генплан агломерационной фабрики
Исходные данные на проектирование.
Таблица 9.27. Ведомость электрических нагрузок завода
№ по плану | Наименование цеха | Установленная мощность, кВт |
1 | Материальный склад | 150 |
2 | Литейный цех | 1300 |
Литейный цех (6 кВ) | 1100 | |
3 | Ремонтно-механический цех | по заданию преподавателя |
4 | Склад оборудования и запасных частей | 120 |
5 | Рессорный цех | 900 |
6 | Пакгауз | 100 |
7 | Пожарное депо | 60 |
8 | Насосная | 300 |
Насосная (6 кВ) | 600 | |
9 | Арматурный цех | 1300 |
10 | Кузнечно-прессовый цех | 900 |
11 | Штамповочно-механический цех | 1400 |
12 | Гараж | 110 |
13 | Лаборатории | 240 |
14 | Заводоуправление | 70 |
15 | Столовая | 220 |
| Освещение цехов и территории | Определить по площади |

Рис. 9.27. Генплан дизелестроительного завода
Исходные данные на проектирование.
Таблица 9.28. Ведомость электрических нагрузок комплекса
№ по плану | Наименование цеха | Установленная мощность, кВт |
1 | Листопрокатный цех № 1 | 10730 |
Листопрокатный цех № 1 (10 кВ) | 22740 | |
2 | Листопрокатный цех № 2 | 3900 |
Листопрокатный цех № 2 (10 кВ) | 6350 | |
3 | Листопрокатный цех № 3 | 39700 |
Листопрокатный цех № 3 (6 кВ) | 5470 | |
Листопрокатный цех № 3 (10 кВ) | 21450 | |
4 | Станция защитных газов | 3400 |
5 | Цех рекуперации | 900 |
6 | Компрессорная | 500 |
Компрессорная (6 кВ) | 6500 | |
7 | Химводоочистка | 380 |
8 | Бытовые помещения | 120 |
9 | Цех водоснабжения | 180 |
10 | Столовая | 2000 |
11 | Центральная заводская лаборатория | 900 |
12 | Цех подготовки составов | 120 |
Цех подготовки составов (10 кВ) | 1625 | |
13 | Бойлерная (6 кВ) | 1825 |
14 | Стан «Слябинг» | 11200 |
Стан «Слябинг» (6 кВ) | 15180 | |
Стан «Слябинг» (10 кВ) | 23850 | |
15 | Стан «2500» | 14380 |
Стан «2500» (6 кВ) | 6450 | |
Стан «2500» (10 кВ) | 37700 | |
16 | Ремонтно-механический цех | по заданию преподавателя |
17 | Материальный склад | 180 |
18 | Насосная | 100 |
насосная (6 кв) | 1290 | |
| Освещение цехов и территории | определить по площади |

Рис. 9.28. Генплан комплекса цехов листопрокатного производства металлургического комбината
Исходные данные на проектирование.
Таблица 9.29. Ведомость электрических нагрузок завода
№ по плану | Наименование цеха | Установленная мощность, кВт |
1 | Цех прямых красителей | 4620 |
2 | Цех полупродуктов № 1 | 1800 |
3 | Холодильная установка № 1 | 850 |
| Холодильная установка (6 кВ — синхронные двигатели) | 8355 |
4 | Административно-бытовой корпус | 250 |
5 | Градирня | 20 |
| Градирня (6 кВ) | 1000 |
6 | Компрессорная | 580 |
| Компрессорная (6 кВ — асинхронные двигатели) | 8000 |
7 | Газоспасательная станция | 30 |
8 | Подсобный цех | 400 |
9 | Столовая | 280 |
10 | Цех полупродуктов № 2 | 625 |
11 | Цех активных красителей | 1200 |
12 | Холодильная установка № 2 | 600 |
13 | Склад готовой продукции | 60 |
14 | Бытовой корпус | 70 |
15 | Цех натриевой соли | 620 |
16 | Склад ЛВЖ | 80 |
17 | Склад кислот | 75 |
18 | Ремонтно-механический цех | 120 |
| Освещение цехов и территории завода | Определить по площади |

Рис. 9.29. Генплан химического завода по производству прямых и обратных красителей
Исходные данные на проектирование.
Таблица 9.30. Ведомость электрических нагрузок завода
№ по плану | Наименование цеха | Установленная мощность, кВт |
1 | Деревообрабатывающий цех | 500 |
2 | Цех сборки, компрессорная, испытание холодильных машин | 350 |
3 | Малярный и опытный цехи | 520 |
4 | Инструментальный и ремонтный цехи | 980 |
5 | Цех заготовки пакетов | 100 |
6 | Центральный склад | 30 |
7 | Транспортный цех | 120 |
8 | Сборочный, механический, заготовительный и гальванический цехи | 3200 |
9 | Цех горячего эмалирования | 2290 |
10 | Центральная котельная | 1250 |
11 | Склад комплектующих изделии | 30 |
12 | Склад металлов | 40 |
13 | Заводоуправление | 70 |
14 | Столовая | 180 |
15 | Участок резки стекла | 60 |
16 | Компрессорная | 800 |
17 | Ремонтно-механический цех | 210 |
| Освещение цехов и территории завода | Определить по площади |

Рис. 9.30. Генплан завода торгового машиностроения
Исходные данные на проектирование.
Таблица 9.31. Ведомость электрических нагрузок завода
№ по плану | Наименование цеха | Установленная мощность, кВт |
1 | Заводоуправление и лаборатории | 160 |
2 | Ремонтно-механический цех | Указывается преподавателем |
3 | Кроватный цех | 1580 |
4 | Бытовые помещения | 90 |
5 | Столовая | 220 |
6 | Цех эмальпосуды | 4300 |
| Цех эмальпосуды (6 кВ) | 1200 |
7 | Склад готовой продукции | 100 |
8 | Насосная | 80 |
| Насосная (6 кВ) | 1250 |
9 | Гараж размораживания | 60 |
10 | Материальный склад | 60 |
11 | Гараж | 70 |
| Освещение цехов и территории завода | Определить по площади |

Рис. 9.31. Генплан механического завода местной промышленности
Исходные данные на проектирование.
Таблица 9.32. Ведомость электрических нагрузок завода
№ по плану | Наименование цеха | Установленная мощность, кВт |
1 | Деревообрабатывающий цех | 300 |
2 | Цех сборки, компрессорная, испытание холодильных машин | 550 |
3 | Сборочный, механический, заготовительный и гальванический цехи | 2520 |
4 | Инструментальный и ремонтный цехи | 980 |
5 | Цех заготовки | 1100 |
6 | Транспортный цех | 120 |
7 | Опытный цех | 1200 |
8 | Цех горячего эмалирования | 2290 |
9 | Склад комплектующих изделии | 30 |
10 | Заводоуправление | 70 |
11 | Столовая | 180 |
12 | Участок резки стекла | 60 |
13 | Компрессорная | 800 |
14 | Ремонтно-механический цех | 210 |
| Освещение цехов и территории завода | определить по площади |

Рис.9.32. Генплан завода торгового машиностроения
Исходные данные на проектирование.
Таблица 9.33. Ведомость электрических нагрузок завода
№ по плану | Наименование цеха | Установленная мощность, кВт |
1 | Лесопильный цех | 1600 |
2 | Сушильный цех | 500 |
3 | Ремонтно-механический цех | Указывается преподавателем |
4 | Биржа сырья | 700 |
5 | Столярный цех | 900 |
6 | Цех № 1 | 620 |
7 | Мебельный цех | 450 |
8 | Насосная | 480 |
9 | Сборочный цех | 420 |
10 | Склад готовой продукции | 60 |
11 | Материальный склад | 50 |
12 | Компрессорная | 100 |
| Компрессорная (6 кВ — синхронные двигатели) | 1440 |
13 | Заводоуправление и лаборатории | 80 |
14 | Столовая | 210 |
15 | Гараж | 40 |
| Сторонние потребители: |
|
| Бетонный завод | 1000 |
| Хлебозавод | 520 |
| ЖКО | 160 |
| Освещение цехов и территории завода | Определить по площади |

Рис. 9.33. Генплан деревообрабатывающего завода
Исходные данные на проектирование.
Таблица 9.34. Ведомость электрических нагрузок завода
№ по плану | Наименование цеха | Установленная мощность, кВт |
1 | Литейный цех | 2000 |
2 | Ремонтно-механический цех | Указывается преподавателем |
3 | Кузнечный цех | 800 |
4 | Главный корпус | 2400 |
| Главный корпус (10 кВ) | 1200 |
5 | Корпусно-котельный цех | 2700 |
6 | Компрессорная | 360 |
| Компрессорная (10 кВ) | 2880 |
7 | Такелажно-парусный цех | 600 |
8 | Сухой док | 1200 |
9 | Заводоуправление, лаборатории, СКБ | 100 |
10 | Механический док | 900 |
11 | Кислородная станция | 400 |
| Кислородная станция (10 кВ) | 400 |
12 | Плавающий док | 2300 |
13 | Столовая | 270 |
14 | Склад жидкого топлива | 60 |
15 | Лесосушилка | 500 |
16 | Склад кислот | 40 |
17 | Склад москателей | 50 |
| Освещение цехов и территории завода | Определить по площади |

Рис. 9.34. Генплан судоремонтного завода
Исходные данные на проектирование
Таблица 9.35. Ведомость электрических нагрузок фабрики
№ по плану | Наименование цеха | Установленная мощность, кВт |
1 | Склад рудной мелочи | 800 |
2 | Столовая | 220 |
3 | Лаборатории | 80 |
4 | Ремонтно-механический цех | 150 |
5 | Перегрузочная станция | 510 |
6 | Цех спекания | 1740 |
| Цех спекания (10 кВ — синхронные двигатели) | 5200 |
7 | Насосная станция | 320 |
| Насосная станция (10 кВ) | 4300 |
8 | Бытовые помещения | 80 |
9 | Бытовые помещения | 100 |
10 | Управление фабрики | 70 |
11 | Гараж | 110 |
12 | Сероулавливающее устройство | 1800 |
| Сероулавливающее устройство (10 кВ) | 1400 |
13 | Цех фильтрации | 700 |
14 | Котельная | 200 |
15 | Цех шихты | 1110 |
16 | Склад | 30 |
| Освещение цехов и территории фабрики | Определить по площади. |

Рис. 9.35. Генплан агломерационной фабрики металлургического комбината
Исходные данные на проектирование
Таблица 9.36. Ведомость электрических нагрузок завода
№ по плану | Наименование цеха | Установленная мощность, кВт |
1 | Механический цех № 1 | 1800 |
2 | Механический цех № 2 | 4850 |
3 | Механический цех № 3 | 2100 |
4 | Термический цех № 1 | 3300 |
5 | Термический цех № 2 | 2800 |
6 | Компрессорная станция | 300 |
| Компрессорная станция (6 кВ) | 4320 |
7 | Сборочный цех | 1700 |
8 | Кислородная установка | 800 |
| Кислородная установка (6 кВ) | 400 |
9 | Склад готовой продукции | 180 |
10 | Механический цех № 4 | 5800 |
11 | Механический цех № 5 | 3600 |
12 | Цех окраски | 1200 |
13 | Литейный цех № 1 | 960 |
| Литейный цех № 1 (6 кВ) | 3000 |
14 | Литейный цех № 2 | 800 |
| Литейный цех № 2 (6 кВ) | 2500 |
15 | Насосная № 1 | 800 |
16 | Насосная № 2 | 1200 |
17 | Испытательная станция | 1100 |
| Испытательная станция (6 кВ) | 400 |
18 | Заводоуправление, ЦЗЛ, столовая | 420 |
19 | Ремонтно-механический цех | 500 |
| Освещение цехов и территории завода | Определить по площади |

Рис. 9.36. Генплан машиностроительного завода
Исходные данные на проектирование
Таблица 9.37. Ведомость электрических нагрузок завода
№ по плану | Наименование цеха | Установленная мощность, кВт |
1 | Главный корпус (опытный и сборочные цехи, заводоуправление) | 680 |
2 | Вспомогательный корпус (гальванический и инструментальный цехи) | 810
|
3 | Производственный корпус (механический цех и энергоцех) | 580 |
4 | Прессовый цех | 240 |
5 | Склад химикатов | 10 |
6 | Проходная | 10 |
7 | Деревообделочный цех | 250 |
8 | Сборочный цех | 290 |
9 | Ремонтно-механический цех | Указывается преподавателем |
10 | Склад стройматериалов | 20 |
11 | Склад готовой продукции | 40 |
| Освещение цехов и территории завода | Определить по площади |

Рис. 9.37. Генплан завода электрических измерительных приборов
Исходные данные на проектирование
Таблица 9.38. Ведомость электрических нагрузок завода
№ по плану | Наименование цеха | Установленная мощность, кВт |
1 | Административный корпус и столовая | 320 |
2 | Цех хлора и каустика | 10800 |
| Цех хлора и каустика (10 кВ) | 12000 |
3 | Гараж | 50 |
4 | Производственный цех № 1 | 1940 |
5 | Цех хлорофоса | 1130 |
6 | Насосная | 400 |
7 | Материальный склад | 50 |
8 | Цех метиленхлорида | 2250 |
9 | Компрессорная | 280 |
| Компрессорная (10 кВ - синхронные двигатели) | 2880 |
10 | Ремонтно-механический цех | 120 |
11 | Склад готовой продукции | 40 |
12 | Цех сульфата аммония № 1 | 580 |
13 | Цех синильной кислоты № 1 | 1685 |
14 | Цех сжигания газов | 840 |
15 | Цех синильной кислоты № 2 | 1080 |
16 | Цех сульфата аммония № 2 | 450 |
| Освещение цехов и территории завода | Определить по площади |

Рис. 9.38. Генплан химического завода
Исходные данные на проектирование
Таблица 9.39. Ведомость электрических нагрузок завода
№ по плану | Наименование цеха | Установленная мощность, кВт |
1 | Шамотный цех № 1 | 820 |
2 | Шамотный цех № 2 | 1080 |
3 | Динасовый цех | 1250 |
4 | Смесительно-формовочный цех | 1725 |
5 | Цех вращающихся печей | 650 |
6 | Компрессорная | 120 |
| Компрессорная (6 кВ) | 900 |
7 | Цех подготовки глины | 680 |
8 | Цех пылеудаления, газоочистки | 360 |
9 | Цех помола шамота | 1300 |
10 | Лабораторно-конторский корпус | 80 |
11 | Склад сырья | 120 |
12 | Ремонтно-механический цех | Указывается преподавателем |
13 | Бытовые помещения | 60 |
14 | Стекольный цех | 700 |
15 | Столовая | 210 |
16 | Склад готовой продукции | 100 |
17 | Цех туннельных печей | 1180 |
| Освещение цехов и территории завода | Определить по площади |

Рис. 9.39. Генплан завода по производству огнеупоров металлургического комбината
Исходные данные на проектирование
Таблица 9.40. Ведомость электрических нагрузок завода
№ по плану | Наименование цеха | Установленная мощность, кВт |
1 | Проходная | 20 |
2 | Механический цех № 1 | 1900 |
3 | Литейная цветного литья | 800 |
4 | Кузнечный цех | 1200 |
5 | Склад готовой продукции | 80 |
6 | Заводоуправление | 100 |
7 | Столовая | 300 |
8 | ЦЗЛ и КБ | 420 |
9 | Ремонтно-механический цех | 370 |
10 | Гараж | 150 |
11 | Механический цех №2 | 2300 |
12 | Литейная черного литья | 900 |
| Литейная черного литья (6 кВ) | 1000 |
13 | Цех термической обработки | 1600 |
| Цех термической обработки (6 кВ) | 1800 |
14 | Компрессорная | 250 |
| Компрессорная (6 кВ) | 2880 |
15 | Насосная | 600 |
| Освещение цехов и территории завода | Определить по площади |

Рис. 9.40. Генплан тракторостроительного завода
Исходные данные на проектирование
Таблица 9.41. Ведомость электрических нагрузок завода
№ по плану | Наименование цеха | Установленная мощность, кВт |
1 | Заводоуправление, ЦЗЛ и столовая | 320 |
2 | Блок цехов № 1 | 4000 |
3 | Блок цехов № 2 | 3000 |
4 | Блок цехов № 3 | 3600 |
5 | Блок цехов № 4 | 2800 |
6 | Склад металла | 270 |
7 | Склад масел, химикатов, брикетов | 210 |
8 | Пожарное депо | 100 |
9 | Кузнечный цех и цех обжига | 1860 |
10 | Компрессорная | 200 |
| Компрессорная (10 кВ) | 2880 |
11 | Газогенераторная | 530 |
12 | Котельная | 450 |
13 | Насосная | 340 |
| Насосная (10 кВ) | 2000 |
14 | Ремонтно-механический цех | 410 |
15 | Электроцех | 520 |
| Освещение цехов и территории завода | определить по площади |

Рис. 9.41. Генплан завода «Шарикоподшипник»
Исходные данные на проектирование
Таблица 9.42. Ведомость электрических нагрузок завода
№ по плану | Наименование цеха | Установленная мощность, кВт |
1 | Деревообрабатывающий цех | 300 |
2 | Механоштамповочный цех | 1120 |
3 | Цех металлических моделей и гальванический цех | 1200 |
4 | Инструментальный и штамповочный цехи | 2180 |
5 | Термический цех | 800 |
6 | Экспериментальный цех | 1860 |
7 | Сборочный и окрасочный цехи | 740 |
8 | Депо электрокар | 400 |
9 | Столовая | 260 |
10 | Административный корпус | 50 |
11 | Чугунолитейный цех | 6700 |
12 | Отделочный корпус | 2800 |
13 | Копровый цех | 140 |
14 | Склад ГСМ | 10 |
15 | Насосная | 100 |
16 | Ремонтно-механический цех | 250 |
17 | Компрессорная | 180 |
| Компрессорная (6 кВ — синхронные двигатели) | 2880 |
| Освещение цехов и территории завода | определить по площади |

Рис. 9.42. Генплан завода химического и текстильного машиностроения
Исходные данные на проектирование
Таблица 9.43. Ведомость электрических нагрузок завода
№ по плану | Наименование цеха | Установленная мощность, кВт |
1 | Склад сырья | 100 |
2 | Бытовые помещения и столовая | 400 |
3 | Заводоуправление, СКБ, ЦЗЛ | 350 |
4 | Гараж | 180 |
5 | Материальный склад | 70 |
6 | Склад готовой продукции | 250 |
7 | Цех жести | 7000 |
| Цех жести (10 кВ) | 3600 |
8 | Деревообрабатывающий цех | 380 |
9 | Компрессорная | 400 |
| Компрессорная (10 кВ) | 5800 |
10 | Насосная | 700 |
| Насосная (10 кВ) | 8000 |
11 | Цех холодной прокатки | 10000 |
| Цех холодной прокатки (10 кВ) | 14000 |
12 | Цех горячей прокатки | 9000 |
| Цех горячей прокатки (10 кВ) | 11000 |
13 | Слябинг | 4800 |
| Слябинг (10 кВ) | 10000 |
14 | Доменный цех | 12000 |
| Доменный цех (10 кВ) | 5000 |
15 | Мартеновский цех | 3200 |
| Мартеновский цех (10 кВ) | 2600 |
16 | Ремонтно-механический цех | 520 |
| Освещение цехов и территории завода | Определить по площади |

Рис. 9.43. Генплан завода черной металлургии
Таблица П1. Расчетные коэффициенты электрических нагрузок (коэффициенты спроса и коэффициенты мощности) по установке, процессу, цеху, предприятию в целом
Наименование | Коэффициенты
| |
| cosϕ | Kc |
1 | 2 | 3
|
2.1. Черная металлургия
|
|
|
По установке непрерывной разливки стали (УНРС) в целом
| 0,7 | 0,7 |
Аглофабрики
| - | 0,5-0,7 |
Коксохимический завод с углемойкой без сероочистки
| - | 0,3 |
Доменный цех | 0,77 | 0,6
|
Мартеновский цех с котлами утилизаторами
| 0,74 | 0,3 |
То же, без котлов утилизаторов
| - | 0,2 |
Блюминг с нагревательными колодцами:
|
|
|
Главный привод
| - | 0,75 |
Механизмы и краны
| - | 0,35-0,4 |
Всего по стану
| - | 0,4-0,6 |
Заготовочный стан 900
| - | 0,6-0,65 |
Трубопрокатный стан (агрегат Штифеля 130-З60 мм)
| 0,47 | 0,6 |
Прошивной стан 250-1
| - | 0,36 |
Автомат-стан 250-1
| - | 0,35 |
Редукционный и калибровочный станы 140
| - | 0,19 |
Калибровочный стан и механизмы трубоотделки
| - | 0,59 |
Сварочные трансформаторы дуговой электросварки
| 0,2 | 0,4 |
Ламповые генераторы индукционных печей высокой частоты
| - | 0,65 |
Двигатель-генераторы индукционных высокой частоты
| - | 0,8 |
Общезаводские установки и механизмы
|
|
|
Насосы
| 0,6-0,7 | 0,75-0,85 |
Компенсаторы
| 0,65 | 0,8 |
Механическое станочное оборудование
| 0,16 | 0,5-0,6 |
Деревообрабатывающие станки
| 0,55 | 0,75 |
Котельная
| 0,6 | 0,75 |
Сантехвентиляция
| 0,6-0,7 | 0,7-0,8 |
Внутреннее освещение производственных цехов
| 0,85-0,95 | 0,95-1,0 |
Внутреннее освещение вспомогательных цехов
| 0,9 | 1,0 |
Метизное производство. Сталепроволочное и железопроволочное производство
|
|
|
Волочильные станы
| 0,3-0,45 | 0,8-0,87 |
Электропечи сопротивления для термической обработки
| 0,6-0,65 | 1,0 |
Производственные вентиляторы и воздуходувки
| 0,65 | 0,75 |
Центробежные насосы
| 0,6 | 0,7 |
Краны и тельферы
| 0,1 | 0,65 |
Сварочные аппараты
| 0,05 | 0,6 |
Расточный станок
| 0,14 | 0,5 |
Сверлильный станок
| 0,14 | 0,5 |
Заточный станок
| 0,14 | 0,5 |
Пилоножеточный станок
| 0,14 | 0,5 |
Шлифовальный станок
| 0,14 | 0,5 |
Прочее оборудование
|
|
|
Сварочные трансформаторы
| 0,2 | 0,399 |
Однопостовые сварочные двигатель-генераторы
| 0,2 | 0,399 |
Вентиляторы сантехнические
| 0,65 | 0,8 |
Вентиляторы технологические
| 0,5 | 0,69 |
Компрессоры
| 0,65 | 0,8 |
Дымососы
| 0,9 | 0,901 |
Насосы водяные
| 0,7 | 0,8 |
Механизмы на сплаве: сплоточные машины
| 0,6 | 0,69 |
Сортировочные машины
| 0,6 | 0,69 |
Сортировочно-формовочные машины
| 0,65 | 0,69 |
Гидроускорители
| 0,65 | 0,69 |
Потокообразователи
| 0,7 | 0,8 |
Барабанные ускорители
| 0,3 | 0,554 |
Троповые ускорители
| 0,5 | 0,6 |
Вспомогательные механизмы автомат-стана 250-1
| - | 0,45 |
Рельсобалочный стан
| - | 0,5-0,6 |
Сортовые станы 300
| 0,87 | 0,5 |
Мелкосортные и проволочные станы
| - | 0,5 |
Тонколистовой стан, включая отжиг
| - | 0,5 |
Преобразовательный агрегат главного подъема доменного цеха
| 0,85 | 0,5 |
Ремонтные и вспомогательные цехи
| 0,7-0,93 | 0,4-0,5 |
2.2. Лесная и деревообрабатывающая промышленность
| ||
Цеха и заводы лесозаготовительных предприятий:
|
|
|
лесопильные цеха и заводы (2-х, 4-х, 6-ти и 8-ми рамные)
| 0,645 | 0,36 |
Тарные цеха
| 0,6 | 0,36 |
Деревообрабатывающие цеха (оконных и щитовых блоков)
| 0,645 | 0,3 |
Цех древесно-волокнистых плит
| 0,69 | 0,47 |
2.3. Легкая промышленность
| ||
Фабрики вязально-прошивных материалов
|
|
|
Цеха подготовки волокна
| 0,75 | 0,65 |
Браковочные цеха
| 0,73 | 0,7 |
Нитепрошивные и холстопрошивные цеха
| 0,77 | 0,75 |
Фабрики клееных материалов
|
|
|
Цеха подготовки волокна
| 0,75 | 0,65 |
Цеха клееных материалов
| 0,79 | 0,65 |
2.4. Горнодобывающая промышленность
| ||
Угольные шахты
|
|
|
По цеху (установка и т.п.) в целом
|
|
|
Клетьевой подъем дренажной шахты
| 0,7 | 0,7 |
Корпус дробления
| 0,7 | 0,6 |
Сушильный корпус
| 0,75 | 0,65 |
Радиальные сгустители
| 0,75 | 0,65 |
Погрузка угля
| 0,75 | 0,4 |
Шламовое хозяйство
| 0,75 | 0,7 |
Околоствольный двор
| 0,7 | 0,6-0,7 |
Собственные нужды скиповых угольных подъемников
| 0,7 | 0,7 |
Клетьевые подъемники
| 0,7 | 0,7 |
Технологический комплекс
| 0,7 | 0,6-0,7 |
Котельная
| 0,7 | 0,7 |
Калориферная
| 0,75 | 0,7 |
Насосная
| 0,75 | 0,7-0,8 |
Административно-бытовой комбинат
| 0,7 | 0,6 |
Прочие мелкие установки
| 0,7 | 0,7 |
Очистные работы
| 0,6 | 0,4 |
Подготовительные работы
| 0,9 | 0,4-0,7 |
Прочие механизмы
| 0,7 | 0,7 |
2.5. Нефтяная и нефтеперерабатывающая промышленность
| ||
По установке, процессу в целом:
|
|
|
Компрессорные станции
| 0,8-0,85 | 0,85-0,9 |
Глубинонасосные установки
| 0,5-0,8 | 0,45-0,6 |
Насосные станции по перекачке
|
|
|
воды
| 0,75-0,85 | 0,6-0,8 |
нефти
| 0,7-0,8 | 0,6-0,7 |
Бурящиеся буровые
| 0,6-0,75 | 0,25-0,7 |
Нефтедобывающий район в целом
| 0,7-0,8 | 0,З-0,6 |
Электрообессоливающая установка при установленной мощности, кВт:
|
|
|
130 | 0,7 | 0,55
|
350 | 0,85 | 0,8
|
Депарафинизация масел
| 0,85 | 0,95 |
Атмосферно-вакуумная трубчатка с электроприводом
| 0,88 | 0,8 |
Вторичная перегонка
| 0,85 | 0,95 |
Фенольные установки
| 0,85 | 0,95 |
Термический крекинг
| - | 0,85 |
Азеотропная установка
| - | 0,4 |
Алкилирование
| 0,86 | 0,65 |
Газофракционирующая установка
| 0,84 | 0,7 |
Каталитический крекинг
| 0,9 | 0,85 |
Сернокислотная очистка
| - | 0,3 |
Гидроформинг
| - | 0,5 |
2.6. Химическая промышленность
| ||
Подготовительный цех, склады сырья и готовой продукции
|
|
|
Резиносмесители
| 0,8 | 0,68 |
Пелетайзеры
| 0,85 | 0,75 |
Компрессоры
| 0,85 | 0,7 |
Транспортное оборудование
| 0,65 | 0,35 |
Вентиляция
| 0,8 | 0,65 |
Технологическое оборудование
| 0,75 | 0,4 |
Двигатель-генератор | 0,8 | 0,7
|
Подъемники
| 0,45 | 0,4 |
Зарядная станция для электрокар и погрузчиков
|
|
|
Технологическое оборудование
| 0,5 | 0,25 |
Зарядные агрегаты
| 0,8 | 0,625 |
Подготовительное отделение
|
|
|
Технологическое оборудование
| 0,6 | 0,45 |
Внутризаводской транспорт
| 0,75 | 0,65 |
Пневмотранспорт
| 0,8 | 0,7 |
Вентиляция
| 0,8 | 0,7 |
Кордочесальное отделение
|
| - |
Технологическое отделение
| 0,77 | 0,55 |
Вентиляция
| 0,8 | 0,7 |
Пневмотранспорт
| 0,8 | 0,7 |
Участок чистки и точки валков
|
|
|
Станки
| 0,65 | 0,6 |
Вентиляция
| 0,8 | 0,7 |
Участок приготовления эмульсии
|
|
|
Технологическое оборудование
| 0,7 | 0,65 |
Вентиляция
| 0,8 | 0,7 |
Прядильно-крутильный цех
|
|
|
Технологическое оборудование
| 0,73 | 0,52 |
Вентиляция
| 0,8 | 0,7 |
Ткацкое отделение
|
|
|
Технологическое оборудование | 0,6 | 0,4
|
Вентиляция
| 0,8 | 0,65 |
Отделение асбестовых набивок
|
|
|
Технологическое оборудование
| 0,67 | 0,4 |
Вентиляция
| 0,8 | 0,7 |
Прессовое отделение
|
|
|
Технологическое оборудование
| 0,62 | 0,46 |
Электрообогрев прессов
| 0,95 | 0,8 |
Установка ТВЧ
| 0,6 | 0,8 |
Внутризаводской транспорт
| 0,8 | 0,61 |
Вентиляция
| 0,8 | 0,65 |
Конденсатные установки
|
|
|
Насосы
| 0,8 | 0,75 |
Производство паронита и изготовление формовочных масс
|
|
|
Массомешалки
| 0,8 | 0,6 |
Вертикальные паронитовые вальцы и отбор. устройства
| 0,75 | 0,62 |
Вакуум-насосы РМК-3
| 0,8 | 0,45 |
Прочее технологическое оборудование
| 0,7 | 0,6 |
Электрообогрев прессов
| 0,95 | 0,8 |
Металлорежущие станки
| 0,8 | 0,18 |
Сантехническое оборудование
| 0,8 | 0,65 |
Пневмотранспорт
| 0,8 | 0,7 |
Транспортеры, шнеки, весовая, дозировки, лебедки
| 0,7 | 0,6 |
Лабораторно-бытовой корпус
|
|
|
Лабораторное оборудование
| 0,65 | 0,6 |
Термические приемники
| 0,95 | 0,6 |
Вентиляторы сантехнические
| 0,8 | 0,7 |
Цех производства транспортных лент и приводных ремней (высоковольтные двигатели)
| 0,8 | 0,67 |
То же (низковольтные двигатели)
| 0,7 | 0,4 |
Цех производства формовой техники без учета электропроцессов
| 0,63 | 0,39 |
То же, с учетом электропроцессов
| 0,8 | 0,67 |
Подготовительный цех
| - | 0,58 |
Цех спецшлангов (в том числе без дорновых рукавов)
| 0,57 | 0,41 |
Цех спиральных и буровых рукавов
| 0,6 | 0,3 |
Цех напорных рукавов
| 0,62 | 0,32 |
Цех клиновидных ремней
| 0,63 | 0,39 |
Шинные заводы
|
|
|
Подготовительный цех (высоковольтные двигатели)
| 0,85-0,9 (емк.) | 0,7 |
То же, (низковольтные двигатели)
| 0,65 | 0,65 |
Сборочный цех
| 0,65 | 0,5 |
Цех каландров (высоковольтные двигатели)
| 0,85-0,9 | 0,65 |
То же, (низковольтные двигатели)
| 0,65 | 0,45 |
Автокамерный цех (высоковольтные двигатели)
| 0,85-0,9 (емк.) | 0,8 |
То же, (низковольтные двигатели)
| 0,75 | 0,4 |
Цех вулканизации
| 0,55 | 0,35 |
Производство полиэтилена
|
|
|
Цех очистки этилена
| 0,9 | 0,9 |
Цех полимеризации
| 0,75 | 0,5 |
Цех дистилляции и очистки азота
| 0,8 | 0,75 |
Цех грануляции
| 0,8 | 0,75 |
Цех катализации
| 0,65 | 0,85 |
Цех легковоспламеняющихся жидкостей
| 0,75 | 0,9 |
Производство аммиака и метанола
|
|
|
Цех разделения воздуха
| 0,95 | 0,87 |
Газовый цех (на природном газе)
| 0,8 | 0,87 |
Газовый цех (на газогенераторном газе)
| 0,8 | 0,65 |
Цех холодильных установок
| 0,9 | 0,79 |
Цех компрессии
| 0,9 | 0,87 |
Цех моноэтаноламиновой очистки
| 0,8 | 0,74 |
Цех синтеза аммиака
| 0,85 | 0,87 |
Цех водной очистки
| 0,80 | 0,89 |
Цех медно-аммиачной очистки
| 0,85 | 0,8 |
Цех синтеза метанола
| 0,7 | 0,81 |
Цех сероочистки | 0,64 | 0,8
|
Цех конверсии окиси углерода
| 0,8 | 0,77 |
Цех ректификации метанола
| 0,72 | 0,5 |
Производство капронового волокна
|
|
|
Химический цех
| 0,8 | 0,6 |
Прядильный цех (с учетом динильных котлов)
| 0,75 | 0,65 |
Крутильный цех
| 0,75 | 0,7 |
Отделочный цех
| 0,75 | 0,7 |
Бобинажно-перемоточный цех
| 0,75 | 0,8 |
Цех регенераций отходов
| 0,70 | 0,65 |
Кордное производство |
|
|
Химический цех
| 0,7 | 0,55 |
Прядильный цех
| 0,8 | 0,7 |
Крутильный цех | 0,8 | 0,7
|
Ткацкий цех
| 0,75 | 0,85 |
Производство центрифугального шелка (вискозная технология)
|
|
|
Химический цех
| 0,7 | 0,55 |
Прядильный цех (без электроверетен)
| 0,75 | 0,65 |
Отделочный цех
| 0,75 | 0,65 |
Бобинажно-перемоточный цех
| 0,7 | 0,8 |
Штапельное производство (вискозная технология)
|
|
|
Химический цех
| 0,7 | 0,6 |
Прядильно-отделочный цех
| 0,8 | 0,75 |
Производство ацетатного шелка
|
|
|
Химический цех
| 0,65 | 0,9 |
Прядильный цех
| 0,7 | 0,85 |
Крутильный цех
| 0,65 | 0,7 |
Цех регенерации ацетона
| 0,8 | 0,9 |
Водонасосная
| 0,8 | 0,75 |
Цех слабой азотной кислоты
|
|
|
Цех слабой азотной кислоты при повышенном давлении
| 0,95 | 0,86 |
То же, при нормальном давлении
| 0,91 | 0,78 |
Заводы по производству хлора, электролитической каустической соды, хлоропродуктов и органических продуктов
|
|
|
В целом по заводу, исключая электролиз хлора и каустической соды
| 0,9 | 0,45-0,6 |
Электролиз (серии ванн) производства хлора и каустической соды
| 0,9 | 1 |
2.7. Полиграфическая промышленность
| ||
Наборный цех в целом
| 0,8 | 0,63 |
Ротационный цех в целом
| 0,7 | 0,54 |
Цех изготовления офсетных форм в целом
| 0,85 | 0,54 |
Цех глубокой печати в целом
| 0,75 | 0,58 |
Брошюровочный цех в целом
| 0,65 | 0,66 |
Печатный цех в целом
| 0,72 | 0,47 |
Переплетный цех в целом
| 0,54 | 0,5 |
Печатные машины "Пламаг" и "Вимаг" (газеты)
| 0,24 | 0,5-0,35 |
Печатные машины ГА, ГА-2 и ГАУ (газеты)
| 0,4 | 0,7 |
Многокрасочные печатные машины "Пламаг" (журналы)
| 0,45 | 0,7 |
Печатные машины "Планета" (журналы, иллюстрации)
| 0,3 | 0,65 |
Печатные машины ПД-2 и ПРП-3 (книги, журналы)
| 0,45 | 0,66 |
Печатные машины ПРК-2, ПРК-3 и "Пламаг" (книги, журналы)
| 0,5 | 0,62 |
Строкоотливные машины Н-7 и Н-11
| 0,75 | 0,95 |
Фальцевальные машины
| 0,3 | 0,55 |
Вкладочно-швейные резальные агрегаты ВШРА (журналы)
| 0,5 | 0,6 |
2.8. Пищевая промышленность
| ||
Производство сахара
|
|
|
Технологическое оборудование
|
| 0,2 |
Транспортное оборудование
|
| 0,2 |
Жидкостные насосы
| 0,8 | 0,3 |
Воздушные и газовые компрессоры, насосы
| 0,8 | 0,3 |
Вентиляторы и дымососы
|
| 0,3 |
Производство крупы и муки
|
|
|
Мельница сортового помола
| 0,8 | 0,7 |
Мельница обойного помола
| 0,8 | 0,75 |
Сушильно-очистительные башни с шахтами и газовыми сушилками
| 0,75 | 0,45 |
Сушильно-очистительные башни и механизированные склады зерна
| 0,75 | 0,4-0,8 |
Предприятия хлебопекарной и кондитерской промышленности
|
|
|
Технологическое оборудование
| 0,7 | 0,5 |
Нагревательное оборудование
| 0,95 | 0,85 |
Компрессоры, насосы
| 0,75 | 0,65 |
Предприятия плодоовощной промышленности
|
|
|
Технологическое оборудование
| 0,65 | 0,4-0,5 |
Нагревательное оборудование
| 0,95 | 0,85 |
Компрессоры, насосы
| 0,75 | 0,65 |
Предприятие маслосыродельной и молочной промышленности
|
|
|
Технологическое оборудование для производства масла, сыра, брынзы, цельномолочной продукции
| 0,75 | 0,45-0,6 |
Технологическое оборудование для производства молочных консервов
| 0,75 | 0,7 |
Транспортное оборудование
| 0,75 | 0,6 |
Вентиляционное оборудование
| 0,75 | 0,7 |
Холодильное оборудование
| 0,8 | 0,65 |
Теплотехническое оборудование
| 0,8 | 0,5 |
Предприятия по переработке рыбы
|
|
|
Технологическое оборудование
| 0,7 | 0,4 |
Нагревательное оборудование
| 0,95 | 0,6-0,8 |
Дымогенераторы
| 0,95 | 0,6 |
Печи производства рыбных консервов
| 1,0 | 0,3 |
Сушилки тоннельного типа:
|
|
|
привод
| 0,75 | 0,7 |
нагрев
| 0,95 | 0,8 |
Транспортное и грузоподъемное оборудование
| 0,65 | 0,3 |
Насосы
| 0,8 | 0,4 |
Компрессоры и морозильные агрегаты
| 0,8 | 0,6 |
Выпрямители
| 0,6 | 0,8 |
Вентиляторы технологические
| 0,8 | 0,6 |
Производство кулинарных изделий
|
|
|
Технологическое оборудование
| 0,7 | 0,3 |
Нагревательное оборудование
| 0,95 | 0,4 |
Грузоподъемное оборудование
| 0,65 | 0,3 |
Компрессоры, насосы | 0,8 | 0,55 |
Вентиляторы технологические
| 0,7 | 0,6 |
Холодильники
|
|
|
Компрессоры
| 0,85 | 0,8 |
Насосы
| 0,8 | 0,6 |
Лифты
| 0,65 | 0,2 |
Вентиляторы технологические
| 0,70 | 0,6 |
Подсобное оборудование
|
|
|
Зарядные станции
| 0,82 | 0,8 |
Вентиляторы сантехнические
| 0,8 | 0,7 |
Станки РММ
| 0,6 | 0,4 |
Таблица П2. Коэффициенты наибольшей допустимой нагрузки СД по реактивной мощности
Серия, номинальное напряжение, частота вращения двигателя | Относительное напряжение на зажимах двигателя U/Uном | Коэффициент перегрузки по реактивной мощности α при коэффициенте загрузки β | ||
0,90 | 0,80 | 0,70 | ||
СДН, 6 и 10 кВ (для всех частот вращения) СДН, 6 кВ: 600–1000 об/мин 370–500 об/мин 187–300 об/мин 100–167 об/мин СДН, 10 кВ: 1000 об/мин 250–750 об/мин СТД, 6 и 10 кВ, 3000 об/мин СД и СДЗ, 380 В (для всех частот вращения) | 0,95 1,00 1,05 1,10 1,10 1,10 1,10 1,10 1,10 0,95 1,00 1,05 1,10 0,95 1,00 1,05 1,10 | 1,31 1,21 1,06 0,89 0,88 0,86 0,81 0,90 0,86 1,30 1,32 1,12 0,90 1,16 1,15 1,10 0,90 | 1,39 1,27 1,12 0,94 0,92 0,88 0,85 0,98 0,90 1,42 1,34 1,23 1,08 1,26 1,24 1,18 1,06 | 1,45 1,33 1,17 0,96 0,94 0,90 0,87 1,00 0,92 1,52 1,43 1,31 1,16 1,36 1,32 1,25 1,15 |
Таблица П3. Экономическая плотность тока
Проводники | Экономическая плотность тока, А/мм, при числе часов использования максимума нагрузки в год | ||
более 1000 до 3000 | более 3000 до 5000 | более 5000 | |
Неизолированные провода и шины: | |||
– медные | 2,5 | 2,1 | 1,8 |
– алюминиевые | 1,3 | 1,1 | 1,0 |
Кабели с бумажной и провода с резиновой и поливинилхлоридной изоляцией с жилами: | |||
– медными | 3,0 | 2,5 | 2,0 |
– алюминиевыми | 1,6 | 1,4 | 1,2 |
Кабели с резиновой и пластмассовой изоляцией с жилами: | |||
– медными | 3,5 | 3,1 | 2,7 |
– алюминиевыми | 1,9 | 1,7 | 1,6 |
Сечение, полученное в результате указанного расчета, округляется до ближайшего стандартного сечения. Расчетный ток принимается для нормального режима работы, т. е. увеличение тока в послеаварийных и ремонтных режимах сети не учитывается.
Таблица П4. Минимально допустимые сечения для различных климатических зон
Характеристика ВЛ | Сечение проводов, мм2 | |||
Алюминиевых и сплава алюминия | Из термообработанного алюминиевого сплава | Сталеалюминиевых | стальных | |
ВЛ без пересечений в районах по гололеду |
| |||
До II | 70 | 50 | 35/6,2 |
|
в III- IV
| 95 | 50 | 50/8 |
|
в V и более | - | - | 70/11 |
|
Пересечения ВЛ с судоходными реками и инженерными сооружениями в районах по гололеду |
| |||
До II | 70 | 50 | 50/8 |
|
в III- IV
| 95 | 70 | 50/8 |
|
в V и более | - | - | 70/11 |
|
ВЛ, сооружаемые на двуцепных и моногоцепных опорах |
| |||
До 20 кВ | - | - | 70/11 |
|
35 кВ и выше | - | - | 120/19 |
|
Таблица П5.1. Значения коэффициента К1
Усл. температура | Нормир. Т-ра | Поправочные коэффициенты на токи при расчетной температуре среды, °С | |||||||||||
t среды°С | t жил, °С | -5 и ниже | 0 | +5 | +10 | +15 | +20 | +25 | +30 | +35 | +40 | +45 | +50 |
15 | 80 | 1,14 | 1,11 | 1,08 | 1,04 | 1,00 | 0,96 | 0,92 | 0,88 | 0,83 | 0,78 | 0,73 | 0,68 |
25 | 80 | 1,24 | 1,20 | 1,17 | 1,13 | 1,09 | 1,04 | 1,00 | 0,95 | 0,90 | 0,85 | 0,80 | 0,74 |
25 | 70 | 1,29 | 1,24 | 1,20 | 1,15 | 1,11 | 1,05 | 1,00 | 0,94 | 0,88 | 0,81 | 0,74 | 0,67 |
15 | 65 | 1,18 | 1,14 | 1,10 | 1,05 | 1,00 | 0,95 | 0,89 | 0,84 | 0,77 | 0,71 | 0,63 | 0,55 |
25 | 65 | 1,32 | 1,27 | 1,22 | 1,17 | 1,12 | 1,06 | 1,00 | 0,94 | 0,87 | 0,79 | 0,71 | 0,61 |
15 | 60 | 1,20 | 1,15 | 1,12 | 1,06 | 1,00 | 0,94 | 0,88 | 0,82 | 0,75 | 0,67 | 0,57 | 0,47 |
25 | 60 | 1,36 | 1,31 | 1,25 | 1,20 | 1,13 | 1,07 | 1,00 | 0,93 | 0,85 | 0,76 | 0,66 | 0,54 |
15 | 55 | 1,22 | 1,17 | 1,12 | 1,07 | 1,00 | 0,93 | 0,86 | 0,79 | 0,71 | 0,61 | 0,50 | 0,36 |
25 | 55 | 1,41 | 1,35 | 1,29 | 1,23 | 1,15 | 1,08 | 1,00 | 0,91 | 0,82 | 0,71 | 0,58 | 0,41 |
15 | 50 | 1,25 | 1,20 | 1,14 | 1,07 | 1,00 | 0,93 | 0,84 | 0,76 | 0,66 | 0,54 | 0,37 | - |
25 | 50 | 1,48 | 1,41 | 1,34 | 1,26 | 1,18 | 1,09 | 1,00 | 0,89 | 0,78 | 0,63 | 0,45 | - |
Таблица П5.2. Значения коэффициента К2
Способ прокладки | Количество проложенных проводов и кабелей | Снижающий коэффициент для проводов, питающих группы электро приемников и отдельные приемники с коэффициентом использования более 0,7 | ||
одножильных | многожильных | отдельные электроприемники с коэффициентом использования до 0,7 | группы электроприемников и отдельные приемники с коэффициентом использования более 0,7 | |
Многослойно и пучками . . . | - | До 4 | 1,0 | - |
2 | 5-6 | 0,85 | - | |
3-9 | 7-9 | 0,75 | - | |
10-11 | 10-11 | 0,7 | - | |
12-14 | 12-14 | 0,65 | - | |
15-18 | 15-18 | 0,6 | - | |
Однослойно | 2-4 | 2-4 | - | 0,67 |
5 | 5 | - | 0,6 | |
Таблица П5.3. Значения коэффициента К3
Расстояние между кабелями в свету, мм | Коэффициент при количестве кабелей | |||||
| 1 | 2 | 3 | 4 | 5 | 6 |
100 | 1,00 | 0,90 | 0,85 | 0,80 | 0,78 | 0,75 |
200 | 1,00 | 0,92 | 0,87 | 0,84 | 0,82 | 0,81 |
300 | 1,00 | 0,93 | 0,90 | 0,87 | 0,86 | 0,85 |
Таблица П6. Значения функции С и расчетных значений температуры для кабелей
Кабель | Функция С, А·с1/2/мм2 | Расчетное значение температуры проводника, °С | |
начальная | конечная | ||
Кабели с алюминиевыми однопроволочными жилами и бумажной изоляцией | 92
| 65
| 200
|
То же, с многопроволочными жилами | 98
| 65
| 200
|
Кабели с медными однопроволочными жилами и бумажной изоляцией | 140
| 65
| 200
|
То же, с многопроволочными жилами | 147
| 65
| 200 |
Кабели с алюминиевыми жилами и поливинилхлоридной или резиновой изоляцией
| 75
| 65
| 150
|
То же, с медными жилами
| 114
| 65
| 150
|
Кабели с алюминиевыми жилами и полиэтиленовой изоляцией | 62
| 65
| 120
|
То же, с медными жилами | 94 | 65 | 120 |
Таблица П7.1. Аббревиатуры кабелей с пластмассовой изоляцией
№ | обозначение | Признак | расшифровка |
1 |
| Жила | медь |
А | Алюминий | ||
2 |
| Назначение | Силовой |
К | Контрольный | ||
3 | В | Изоляция | ПВХ пластикат |
П | Полимерная композиция (или полиэтилен) | ||
Пс | Самозатухающий полиэтилен | ||
Пв | Вулканизированный полиэтилен | ||
По | Облученный полиэтилен | ||
4 | О | Наружная оболочка | Отдельная экранированная оболочка каждой фазы |
В | Оболочка из ПВХ-пластиката | ||
ВГз | Заполнение – ПВХ пластикат или резина | ||
П | Полимерная композиция | ||
Б | Броня из 2 стальных лент | ||
Бб | Броня из стальных оцинкованных лент | ||
Шв(У) | Защитный шланг из ПВХ пластиката (У-усиленное исполнение) | ||
Шп | Защитный шланг из полиэтилена | ||
Г | Без наружного покрова | ||
5 | Э | Экран | Общий экран – алюминиевая или медная фольга |
![]()
Таблица П7.2. Применение различных марок кабелей
Марка | Сечение | Число жил | Характеристика | Применение |
АВВГ | 2,5 - 50 | 1;2;3;4 | Кабель силовой, с алюминиевыми жилами, ПВХ-изоляцией в ПВХ оболочке | Для прокладки на открытом воздухе по защищенным от прямых солнечных лучей трассам |
АВРГ | 2,5-300 | 1;2;3;4 | Кабель силовой, с алюминиевыми жилами, резиновой изоляцией в ПВХ оболочке | Для прокладки на открытом воздухе при отсутствии механических воздействий, в сухих или сырых тоннелях, помещениях, каналах, на специальных кабельных эстакадах и по мостам |
АНРГ |
| 1;2;3;4 | Кабель силовой, с алюминиевыми жилами, резиновой изоляцией в резиновой маслостойкой и негорючей оболочке | Для прокладки на открытом воздухе при отсутствии механических воздействий, в сухих или сырых тоннелях, помещениях, каналах, на специальных кабельных эстакадах и по мостам |
ВВГ | 2,5-50 | 1;2;3;4 | Кабель силовой, с медыми жилами, ПВХ-изоляцией в ПВХ оболочке | Для прокладки на открытом воздухе по защищенным от прямых солнечных лучей трассам |
ВРГ | 1-240 | 1;2;3;4 | Кабель силовой, с медыми жилами, резиновой изоляцией в ПВХ оболочке | Для прокладки на открытом воздухе при отсутствии механических воздействий, в сухих или сырых тоннелях, помещениях, каналах, на специальных кабельных эстакадах и по мостам |
НРГ | 1-240 |
| Кабель силовой, с медыми жилами, резиновой изоляцией в резиновой маслостойкой оболочке негорючей | Для прокладки на открытом воздухе при отсутствии механических воздействий, в сухих или сырых тоннелях, помещениях, каналах, на специальных кабельных эстакадах и по мостам |
NYM | 1,5-32 | 2;3;4;5 | Кабель силовой с медными жилами, ПВХ изоляцией в ПВХ оболочке, не распространяющей горение. Имеет дополнительный резиновый слой-заполнение | Для монтажа электроспроводки –в сухих и влажных помещениях, на открытом воздухе, вне прямого воздействия солнечгных лучей, в трубах, каналах, на специальных кабельных эстакадах, для подключения промышленных установок, подключения бытовых приборов в стационарных установках |
Таблица П7.3. Маркировка кабелей из сшитого полиэтилена
Слой | Обозначение | Расшифровка |
Токопроводящая жила | А | Алюминий |
| медь | |
Изоляция | Пв | Сшитый полиэтилен |
Экран | Э | Медный экран по изолированной жиле |
Г | Продольная герметизация экрана водонабухающими лентами | |
Га | Продольная и поперечная герметизация экрана водонабухающими материалами и алюмополимерной лентой | |
Наружная оболочка | П | Из полиэтилена или сополимера полиэтилена |
Пу | Усиленная полиэтиленовая оболочка | |
Внг | Из ПВХ пластиката, не распространяющего горение при групповой прокладке кабелей | |
Внгд | Из ПВХ пластиката, не распространяющего горение ис назким выделением дыма и коррозионно активных газов | |
Пнг | Из полимерной композоции не распространяющей горение | |
Пнг-HF | Из полимерной композоции не распространяющей горение не содержащей галогенов | |
Климатическое исполнение |
| Умеренной и холодный (без обозначения) |
Т | тропическое |
Таблица П7.4 применение кабелей из сшитого полиэтилена
Марка кабеля | Рекомендуемые области применения |
АПвЭгП, ПвЭгП | Для прокладки в земле (траншеях) с высокой коррозионной активностью грунта, при условиях защиты от механических повреждений |
АПвЭгаП, ПвЭгаП | То же, для прокладки в сырых, частично затапливаемых помещениях, в несудоходных водоемах при обеспечении механической защиты кабелей |
АпвЭВнг,ПвЭВнг, АпвЭгПнг, ПвЭгПнг | Для групповой прокладки в помещениях, каналах и туннелях, в т.ч. пожароопасных |
Кабели предназначены для прокладки на трассах без ограничения разности уровня. При прокладке кабелей на воздухе (на эстакадах, галереях, открытых лотках и т.д.) необходимо предусмотреть защиту кабелей от солнечного излучения.
Допускается прокладка кабелей с наружной оболочкой из полиэтилена в помещениях и кабельных сооружениях при условии обеспечения дополнительных средств противопожарной защиты.
Кабели с изоляцией из сшитого полиэтилена с маркировкой «нгд» и «нг-HF» предназначены для прокладки на объектах, где наряду с требованиями к нераспространению горения предъявляются требования к пониженному дымогазовыделению при горении и тлении: атомных станциях, электростанциях, метрополитенах, высотных зданиях, крупных промышленных объектах и др.
Прокладка кабелей с маркировкой «нг», «нгд» и «нг-HF» в земле (траншеях) не рекомендуется; в обоснованных случаях допускается прокладка этих кабелей в сухих грунтах при условии обеспечения защиты кабеля от механических повреждений и соблюдении всех требований.
Кабели с усиленной оболочкой из полиэтилена предназначены для прокладки на сложных участках кабельных трасс, содержащих более 4 поворотов под углом свыше 30° или прямолинейные участки с более чем 4 переходами в трубах длиной свыше 20 м или с более чем двумя переходами в трубах длиной свыше 40 м, а также для прокладки в воде.
Кабели с изоляцией из сшитого полиэтилена предназначены для эксплуатации в стационарном состоянии при температуре окружающей среды от +50°С до -50°С для кабелей с наружной оболочкой из ПВХ пластиката, до -60°С – для кабелей с наружной оболочкой из полиэтилена и от +65°С до -25°С – для кабелей в тропическом исполнении.
Длительно допустимая температура нагрева жил кабелей при эксплуатации 90°С. Максимально допустимая температура нагрева жил кабелей с изоляцией из сшитого полиэтилена при коротком замыкании –250°С. Продолжительность короткого замыкания не должна превышать 5 с. Предельно допустимая температура экрана при коротком замыкании – 350°С. Допустимая температура нагрева жил кабелей в режиме перегрузки не более 130°С. Продолжительность работы кабелей с изоляцией из сшитого полиэтилена в режиме перегрузки не должна быть более 8 ч в сутки и не более 1000 ч за срок службы.
Допустимые длительные токи для проводов с резиновой или поливинилхлоридной изоляцией, шнуров с резиновой изоляцией и кабелей с резиновой или пластмассовой изоляцией в свинцовой, поливинилхлоридной и резиновой оболочках приведены в табл. 1.3.4-1.3.11 ПУЭ. Они приняты для температур: жил +65, окружающего воздуха +25 и земли + 15°С.
При определении количества проводов, прокладываемых в одной трубе (или жил многожильного проводника), нулевой рабочий проводник четырехпроводной системы трехфазного тока, а также заземляющие и нулевые защитные проводники в расчет не принимаются.
Данные, содержащиеся в табл. 1.3.4 и 1.3.5 ПУЭ, следует применять независимо от количества труб и места их прокладки (в воздухе, перекрытиях, фундаментах).
Допустимые длительные токи для проводов и кабелей, проложенных в коробах, а также в лотках пучками, должны приниматься: для проводов - по табл. 1.3.4 и 1.3.5 ПУЭ как для проводов, проложенных в трубах, для кабелей - по табл. 1.3.6-1.3.8 ПУЭ как для кабелей, проложенных в воздухе. При количестве одновременно нагруженных проводов более четырех, проложенных в трубах, коробах, а также в лотках пучками, токи для проводов должны приниматься по табл. 1.3.4 и 1.3.5 ПУЭ как для проводов, проложенных открыто (в воздухе), с введением снижающих коэффициентов 0,68 для 5 и 6; 0,63 для 7-9 и 0,6 для 10-12 проводников.
Для проводов вторичных цепей снижающие коэффициенты не вводятся.
Таблица П8.1. Допустимый длительный ток для проводов и шнуров с резиновой и поливинилхлоридной изоляцией с медными жилами
Ток, А, для проводов, проложенных в одной трубе | Сечение токопроводящей жилы, мм2 | |||||
открыто | двух одножильных | трех одножильных | четырех одножильных | одного двухжильного | одного трехжильного | |
0,5 | 11 | - | - | - | - | - |
0,75 | 15 | - | - | - | - | - |
1 | 17 | 16 | 15 | 14 | 15 | 14 |
1,2 | 20 | 18 | 16 | 15 | 16 | 14,5 |
1,5 | 23 | 19 | 17 | 16 | 18 | 15 |
2 | 26 | 24 | 22 | 20 | 23 | 19 |
2,5 | 30 | 27 | 25 | 25 | 25 | 21 |
3 | 34 | 32 | 28 | 26 | 28 | 24 |
4 | 41 | 38 | 35 | 30 | 32 | 27 |
5 | 46 | 42 | 39 | 34 | 37 | 31 |
6 | 50 | 46 | 42 | 40 | 40 | 34 |
8 | 62 | 54 | 51 | 46 | 48 | 43 |
10 | 80 | 70 | 60 | 50 | 55 | 50 |
16 | 100 | 85 | 80 | 75 | 80 | 70 |
25 | 140 | 115 | 100 | 90 | 100 | 85 |
35 | 170 | 135 | 125 | 115 | 125 | 100 |
50 | 215 | 185 | 170 | 150 | 160 | 135 |
70 | 270 | 225 | 210 | 185 | 195 | 175 |
95 | 330 | 275 | 255 | 225 | 245 | 215 |
120 | 385 | 315 | 290 | 260 | 295 | 250 |
150 | 440 | 360 | 330 | - | - | - |
185 | 510 | - | - | - | - | - |
240 | 605 | - | - | - | - | - |
300 | 695 | - | - | - | - | - |
400 | 830 | - | - | - | - | - |
Таблица П8.2 Допустимый длительный ток для проводов с резиновой и поливинилхлоридной изоляцией с алюминиевыми жилами
Сечение токопроводящейжилы, мм2 | Ток, А, для проводов, проложенных в одной трубе | |||||
открыто | двух одножильных | трех одножильных | четырех одножильных | одного двухжильного | одного трехжильного | |
2 | 21 | 19 | 18 | 15 | 17 | 14 |
2,5 | 24 | 20 | 19 | 19 | 19 | 16 |
3 | 27 | 24 | 22 | 21 | 22 | 18 |
4 | 32 | 28 | 28 | 23 | 25 | 21 |
5 | 36 | 32 | 30 | 27 | 28 | 24 |
6 | 39 | 36 | 32 | 30 | 31 | 26 |
8 | 46 | 43 | 40 | 37 | 38 | 32 |
10 | 60 | 50 | 47 | 39 | 42 | 38 |
16 | 75 | 60 | 60 | 55 | 60 | 55 |
25 | 105 | 85 | 80 | 70 | 75 | 65 |
35 | 130 | 100 | 95 | 85 | 95 | 75 |
50 | 165 | 140 | 130 | 120 | 125 | 105 |
70 | 210 | 175 | 165 | 140 | 150 | 135 |
95 | 255 | 215 | 200 | 175 | 190 | 165 |
120 | 295 | 245 | 220 | 200 | 230 | 190 |
150 | 340 | 275 | 255 | - | - | - |
185 | 390 | - | - | - | - | - |
240 | 465 | - | - | - | - | - |
300 | 535 | - | - | - | - | - |
400 | 645 | - | - | - | - | - |
Таблица П8.3. Допустимый длительный ток для кабелей с алюминиевыми жилами с резиновой или пластмассовой изоляцией в свинцовой, поливинилхлоридной и резиновой оболочках, бронированных и небронированных
Сечение токопроводящей жилы, мм2 | Ток, А, для кабелей | ||||
одножильных | двухжильных | трехжильных | |||
при прокладке | |||||
| в воздухе | в воздухе | в земле | в воздухе | в земле |
2,5 | 23 | 21 | 34 | 19 | 29 |
4 | 31 | 29 | 42 | 27 | 38 |
6 | 38 | 38 | 55 | 32 | 46 |
10 | 60 | 55 | 80 | 42 | 70 |
16 | 75 | 70 | 105 | 60 | 90 |
25 | 105 | 90 | 135 | 75 | 115 |
35 | 130 | 105 | 160 | 90 | 140 |
50 | 165 | 135 | 205 | 110 | 175 |
70 | 210 | 165 | 245 | 140 | 210 |
95 | 250 | 200 | 295 | 170 | 255 |
120 | 295 | 230 | 340 | 200 | 295 |
150 | 340 | 270 | 390 | 235 | 335 |
185 | 390 | 310 | 440 | 270 | 385 |
240 | 465 | - | - | - | - |
Данные приведены ориентировочно, для конкретной марки кабеля нужно смотреть данные производителя.
ПОДРОБНЕЕ см. в ПУЭ
Таблица П.9 Расчетные формулы
Элемент электроустановки | Исходный параметр | Именованные единицы, Ом | Относительные единицы, о.е. |
Генератор |
|
|
|
Электрическая система |
|
|
|
|
|
| |
|
|
| |
Трансформатор |
|
|
|
Линия электропередачи |
|
|
|
Учебное электронное издание
Рашевская Марина Александровна
Янченко Сергей Александрович
Вихров Михаил Евгеньевич
Егоров Максим Сергеевич
Михеев Дмитрий Владимирович
Редактор Е.Б.Бурдюкова
Для создания ЭИ использовалось следующее программное обеспечение:
Office – российский пакет офисных программ, Компас 3D.
Для разработки проектной документации рекомендуется использовать:
Office – российский пакет офисных программ для разработки текстовых материалов проектной документации
Компас 3D – для разработки графической части проектной документации
Дата подписания – 15.09.2023
Объём издания – 10 Мбайт.
Тираж –10 электронных оптических дисков DVD-R
Издательство МЭИ
111250, Москва, ул. Красноказарменная, д. 14, стр.1